Complete 2D House Plan Layout
East facing 40x65 vastu based 4BHK duplex house provided with special amenities
This is an east-facing 40x65 Vastu-based 4BHK duplex house provided with special amenities like double height, garden area, balcony, study room, and many more. This is a three-floor building, the ground floor, first floor, and the terrace floor. The ground floor consists of two bedrooms along with a living area, puja room, store room, kitchen, utility area, spacious parking area, and a backyard. The first floor consists of two bedrooms with attached washroom, mini home theater, study space, and the terrace floor consists of spacious open terrace.
The ground floor consists of spacious parking area. The main door of the house is in the east direction. Living hall measures about 16 feet and 12 feet 9 inches, placed in the northeast direction. The puja room measures about 5 feet 8 inches and 6 feet 9 inches. The family hall measures about 22 feet 2 inches and 16 feet 6 inches. The first bedroom measures about 18 feet and 13 feet 7 inches, with an attached bathroom measuring about 7 feet and 5 feet 8 inches. The dining area measures about 11 feet 2 inches and 10 feet 7 inches, having a common bathroom measuring about 7 feet and 5 feet 10 inches. The kitchen in the southeast direction measures about 12 feet 10 inches and 14 feet 2 inches.The setback area at left side is 2 feet 1 inch, at right side is 2 feet 4 inches, and at back side it is 1 foot 6 inches. From the front side, the setback area is 2 feet 11 inches.
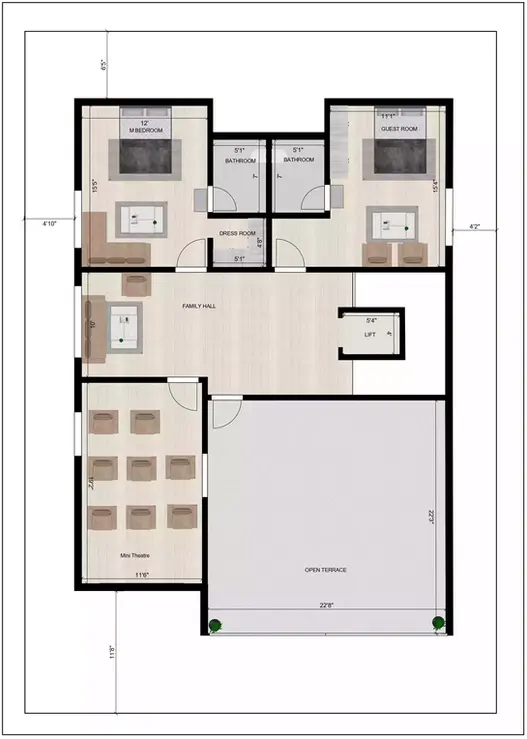
The first floor consists of third bedroom which measures about 12 feet 10 inches and 13 feet 7 inches having an attached washroom measuring about 7 feet and 5 feet 6 inches. The bedroom 4 measures about 19 feet 10 inches and 13 feet 7 inches with an attached bathroom measuring about 5 feet 8 inches and 6 feet 11 inches. The study room measures about 12 feet 10 inches and 19 feet having an attached bathroom measuring 7 feet and 5 feet 10 inches. A family hall measures about 19 feet 11 inches and 19 feet 6 inches. Balcony measures about 12 feet and 10 inches and 14 feet 4 inches having open terrace garden measuring 19 feet 11 inches and 14 feet 4 inches.
The terrace floor consists of a small storeroom measuring about 12 feet 11 inches and 6 feet 5 inches in the southwest direction. Even cloth dryers are also provided in the terrace floor. A headroom is provided along the small yoga space measuring about 13 feet 4 inches and 20 feet 11 inches. Even open terrace is provided measuring 51 feet 7 inches and 33 feet 2 inches.





