House Plans by Size Select
20 x 20 ft Plans

55 x 35
RU
West
55 x 35 ft House Plan 3BHK West Facing With 2BHK Rental House Plan
RU0002
Rating
A west facing 55 by 35, 2BHK and 3BHK rental house plan constructed based on the principles of vastu. This house design is basically designed to generate high rental income. So, this is a three floor building. The ground floor consists of spacious parking where you can park the vehicles of all the rental houses and a 2BHK rental house. The typical floor consists of spacious spa, balcony and 3BHK rental house along with the storeroom and puja room facility. The terrace floor consists of large open terrace.
The ground floor consists of spacious parking area measuring about 34 feet 6 inches and 19 feet 8 inches. The main door of this 2 BHK rental house plan in the ground floor is towards north direction. The living hall is very spacious measuring about 16 feet 5 inches and 16 feet 2 inches. The kitchen is located in the southeast direction measuring about 15 feet 1 inches and 9 feet 11 inches with the storeroom provided in the southwest direction inside the kitchen measuring about 5 feet 6 inches and 7 feet 7 inches. A dining hall is also placed in the kitchen area itself. The bedroom located in the southwest direction measures about 15 feet 6 inches and 10 feet 3 inches.The bedroom located in the northeast direction measures about 10 feet 11 inches and 10 feet.
The first floor consists of three BHK rental house. The balcony area of this house measures about 14 feet 6 inches and 19 feet 8 inches. The main door of this house is towards north direction. The living hall is very spacious, measuring about 16 feet 5 inches and 16 feet 2 inches. The kitchen is located in the southeast direction, measuring about 15 feet 1 inches and 9 feet 11 inches, with the storeroom in the southwest direction inside the kitchen area measuring about 5 feet 2 inches and 7 feet 7 inches. The bedroom in the southwest direction measures about 15 feet 6 inches and 10 feet 3 inches, with an attached bathroom measuring about 10 feet 2 inches and 4 feet 1 inches.The bedroom in the northwest direction measures about 12 feet 2 inches and 10 feet with a common bathroom measuring about 4 feet 1 inches and 8 feet. The puja room is located in the living area measuring about 4 feet 10 inches and 6 feet 5 inches. The bedroom located in the northeast direction measures about 10 feet 11 inches and 10 feet.
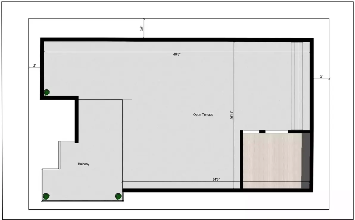
The terrace floor consists of spacious open terrace measuring about 48 feet 18 inches and 34 feet 3 inches with a small storeroom place provided in the southwest direction





