House Plans by Size Select
20 x 20 ft Plans

50 x 40
RV
East
50 x 40 ft Duplex House Plans With Car Parking East Facing Ensuring An Optimal Design
RV0013
Rating
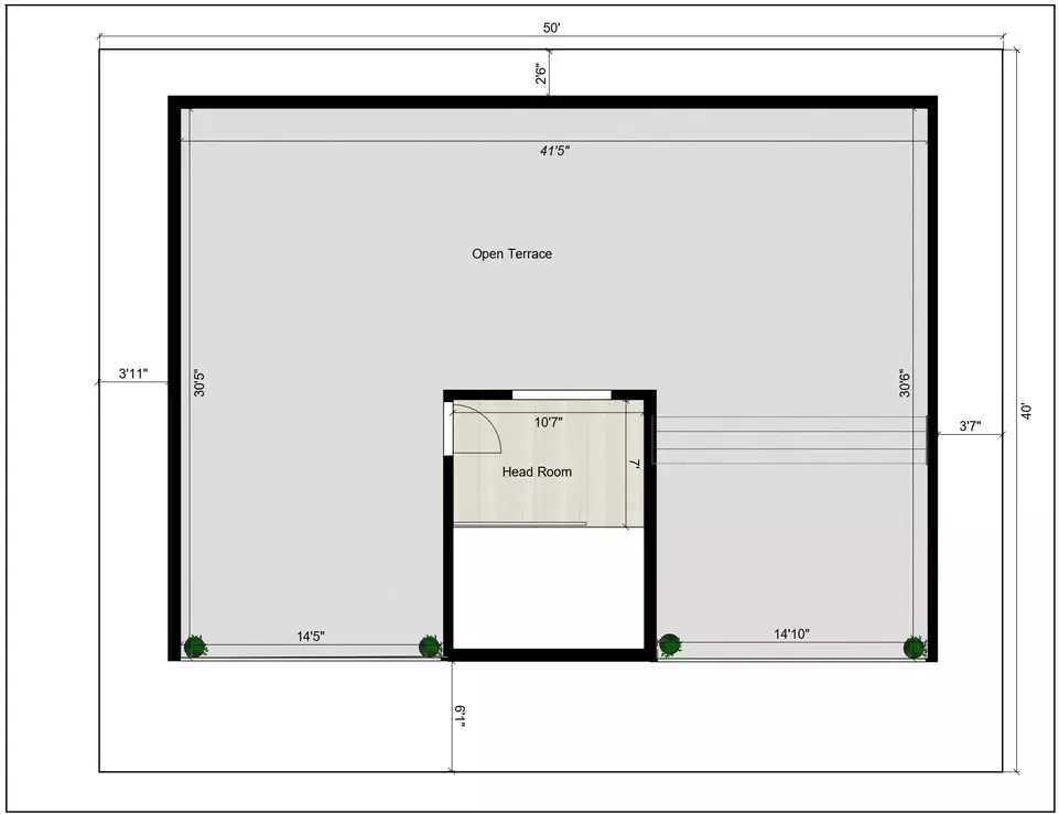
A east-facing 50 x 40, or 2000 sq ft, 6BHK duplex house plan provided with special amenities like double height facility, huge parking area, garden facility, study room, balcony facility, and many more. So, this is a four-floor building. The ground floor consists of one bedroom along with attached washroom, huge parking area, garden facility, living hall, kitchen, utility, and dining area. The first floor consists of two bedrooms with an attached washroom, mini home theater, family hall, and balcony. The second floor consists of three bedrooms with an attached washroom, family area, and balcony. The terrace floor consists of open terrace along with a small headroom.
The ground floor houses a spacious parking lot which is necessary to park the vehicles. The parking area measures about 18 feet 8 inches and 15 feet 6 inches. There is a garden covered in the southeast direction of the house, measuring about 30 feet and 5 feet 6 inches. The main door of this house is in the east direction. As we enter, we can encounter a spacious and luxurious living hall, measuring about 15 feet 1 inches and 20 feet 6 inches. As we pass, there is a kitchen placed in the southeast direction, measuring about 9 feet 4 inches and 11 feet 7 inches, with an open dining hall measuring about 10 feet 3 inches and 7 feet 1 inches. A utility area is directly connected to the kitchen, measuring about 5 feet 8 inches and 19 feet 8 inches. A common bathroom is present near the utility area, measuring about 5 feet 1 inches and 4 feet 9 inches.The bedroom located in the southwest direction measures about 19 feet 11 inches and 9 feet 10 inches with an attached bathroom measuring about 4 feet 10 inches and 6 feet 4 inches. A common bathroom is provided right opposite to the steps measuring about 5 feet 4 inches and 6 feet 4 inches. The setback area in right side is about 3 feet 1 inches, back side is about 2 feet and at left side is about 3 feet 3 inches.
There is a mini home theater located in southeast direction measuring about 14 feet 7 inches and 19 feet 8 inches. The family hall measures about 16 feet 6 inches and 10 feet 3 inches. The balcony located in the northeast direction measures about 14 feet 11 inches and 9 feet 3 inches.
The second floor consists of three bedrooms. The first bedroom, which is located in the southwest direction, measures about 19 feet 11 inches and 9 feet 9 inches, with an attached bathroom measuring about 4 feet 9 inches and 6 feet 4 inches. Another bedroom, located in northwest direction, measures about 15 feet 6 inches and 9 feet 9 inches, with an attached bathroom measuring about 4 feet 10 inches and 6 feet 6 inches.The bedroom which is located in the southeast direction measures about 14 feet 7 inches and 10 feet 10 inches with an attached bathroom measuring about 5 feet 1 inches and 8 feet 5 inches. The family area measures about 16 feet 6 inches and 10 feet 3 inches. The balcony in the northeast direction measures about 14 feet 11 inches and 9 feet 3 inches.
The terrace floor consists of large open wide terrace measuring about 41 feet 5 inches and 30 feet 5 inches with a small headroom measuring about 10 feet 7 inches and 7 feet.









