House Plans by Size Select
20 x 20 ft Plans

45 x 50
RS
East
45 x 50 ft Duplex House Plans East Facing Of The Residential Building Facing In East Direction
RS0014
Rating
This is a east-facing 45 ft by 50 ft, 5BHK duplex houseplant constructed based on the principles of Vastu provided with special amenities like pooja room, study room, family hall, and gym area. This is a 3-floor building. The ground floor consists of a spacious parking area along with a living area, kitchen, dining hall, with two bedrooms. The first floor consists of three bedrooms along with an attached washroom, study room, and the balcony. The terrace floor consists of a gym area and an open terrace.
The ground floor consists of spacious parking area measuring about 11 feet 3 inches and 25 feet 6 inches. The main door of this house is in east direction. Living hall measures about 14 feet 4 inches and 11 feet 5 inches. Pooja room measures about 5 feet 1 inches and 4 feet 2 inches. The kitchen is located in the southeast direction. Dining hall measures about 8 feet 6 inches wide. The first bedroom in the southwest direction measures about 14 feet 9 inches and 12 feet 10 inches. With an attached bathroom measuring 10 feet 1 inches and 6 feet. The bedroom in the northwest direction measures about 14 feet 9 inches and 12 feet 10 inches. With an attached bathroom measuring 5 feet 3 inches and 8 feet 10 inches. The setback area at back side is 3 feet. At right side it is 3 feet 7 inches and at left side it is 3 feet 5 inches.
The first floor consists of three bedrooms. The first bedroom, located in the southwest direction, measures about 14 feet 9 inches by 12 feet 10 inches and includes an attached bathroom measuring about 9 feet 8 inches by 5 feet 2 inches. The second bedroom, located in the northwest direction, measures about 14 feet 9 inches by 12 feet 10 inches, with an attached bathroom measuring about 5 feet 3 inches by 8 feet 10 inches.The family hall measures about 14 feet 3 inches by 12 feet 8 inches and is connected to a balcony measuring about 7 feet 9 inches by 9 feet 10 inches.The third bedroom measures about 13 feet 1 inches and 11 feet 2 inches, with an attached bathroom measuring 13 feet 1 inches and 4 feet 9 inches, with a balcony measuring about 13 feet 2 inches and 5 feet 2 inches. The study room measures about 14 feet 3 inches and 8 feet 11 inches.
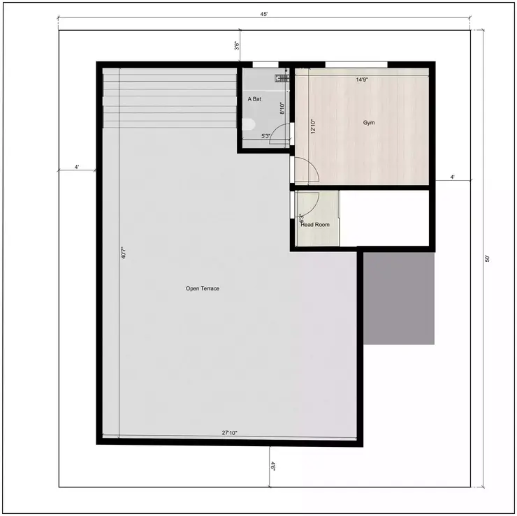
The terrace floor consists of spacious open terrace measuring about 27 feet 10 inches and 40 feet 7 inches with a gym area in the northwest direction measuring about 14 feet 9 inches and 12 feet 10 inches with an attached bathroom measuring 5 feet 3 inches and 8 feet 10 inches.









