House Plans by Size Select
20 x 20 ft Plans

40 x 60
RT
East
40 x 60 ft House Plan 2 BHK East Facing With Lift
RT0008
Rating
This is a east-facing, 40 by 60, 2BHK rental house plan constructed based on the principles of Vastu. This house design is basically constructed to generate a high rental income. This house is also provided with a lift facility and a balcony facility. This is a three-floor building. The ground floor consists of a 2BHK rental house along with a spacious parking. The first floor consists of a 2BHK spacious and luxurious rental unit. The terrace floor consists of an open terrace along with a headroom. This house consists of each rental unit in each single floor, maintaining privacy among all the rented houses.
The ground floor consists of spacious parking of 39 feet wide. The main door of the rental unit is in the east direction. The living hall is very spacious, measuring about 21 feet 1 inches and 10 feet. The kitchen is located in the southeast direction, measuring about 9 feet 2 inches and 6 feet 9 inches. The bedroom in the southwest direction measures about 13 feet 11 inches and 14 feet, with the utility provided outside measuring about 16 feet 7 inches and 5 feet 2 inches. The storeroom measures about 7 feet 6 inches and 6 feet 8 inches. The study room measures about 6 feet 8 inches, with an attached bathroom measuring about 5 feet 4 inches and 10 feet 4 inches. Another bedroom in the northeast direction measures about 12 feet 1 inches and 14 feet 1 inches, with an attached bathroom measuring about 6 feet 2 inches and 10 feet 4 inches.
The typical floor consists of two BHK spacious and luxurious rental house. The main door of this is in the north direction. The drawing room measures about 12 feet 5 inches and 6 feet 1 inches. The Pooja room is located in the drawing room measuring about 3 feet 10 inches and 4 feet 9 inches. The balcony is directly connected to the drawing room measuring about 8 feet 5 inches and 5 feet 1 inches. The kitchen in the south east direction measures about 11 feet 3 inches and 15 feet 3 inches with an attached utility measuring about 5 feet and 7 feet 2 inches. The laundry measures about 5 feet and 7 feet 1 inches. The dining hall is provided in the living area. The living area measures about 21 feet 2 inches and 21 feet 7 inches.The bedroom in the southwest direction measures about 13 feet 11 inches and 14 feet, with the utility provided outside measuring about 16 feet 7 inches and 5 feet 2 inches. The storeroom measures about 7 feet 6 inches and 6 feet 8 inches. The study room measures about 6 feet 8 inches, with an attached bathroom measuring about 5 feet 4 inches and 10 feet 4 inches. Another bedroom in the northeast direction measures about 12 feet 1 inches and 14 feet 1 inches, with an attached bathroom measuring about 6 feet 2 inches and 10 feet 4 inches.
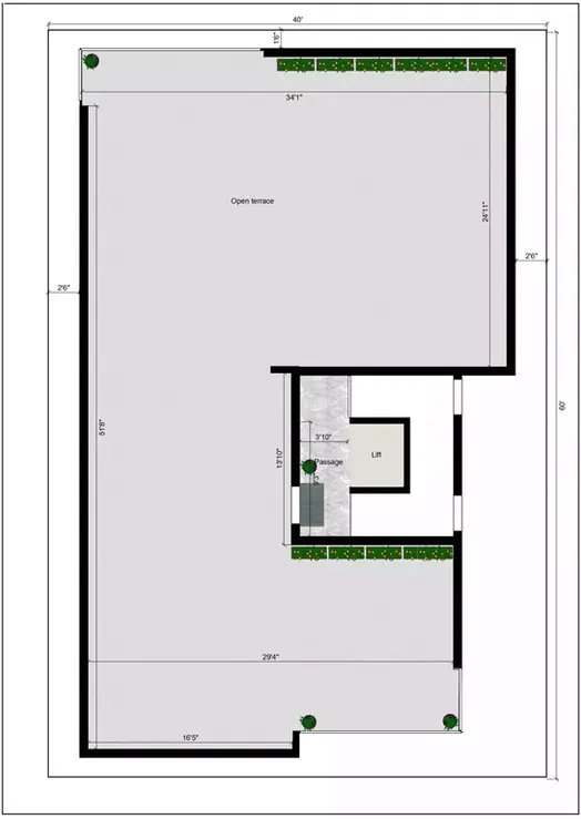
The terrace floor consists of spacious open terrace measuring about 34 feet 1 inches and 51 feet 8 inches. The lift facility is provided till the terrace floor. The headroom measures about 9 feet 3 inches and 3 feet 10 inches.









