House Plans by Size Select
20 x 20 ft Plans

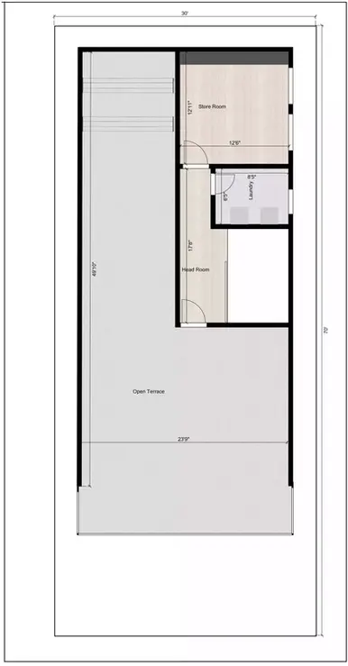
30 x 70
RO
North
House Plan 30 x 70 ft 4BHK Duplex
RO0009
Rating
Luxurious modern duplex house design with 4 bedroom with Vastu north facing along with car parking.
This is a north-facing, 30 x 70 ft (9.14 × 21.34 m), 4BHK duplex house plan constructed within the three floors. This house also consists of special features like mini home theatre, study room, store room, puja room, and many more. This house is constructed based on the principles of Vastu. This is a three-floor building. The ground floor consists of a spacious parking area, two bedrooms with attached washroom, puja room, kitchen, and utility, along with a living hall. The first floor consists of two bedrooms with an attached washroom, family hall, and the mini home theatre. The second floor consists of a store room, along with a spacious parking area.
The ground floor consists of a spacious parking area measuring about 29 feet and 16 feet 3 inches located in the front side of the plot. The main door of this house is in the north to west direction. The living hall measures about 12 feet 1 inches and 18 feet. The stairs move west with a south turn and the dining hall measures about 4 feet 1 inches and 3 feet 5 inches. This common bathroom measures about 8 feet 5 inches and 6 feet 5 inches located in the south west direction. An open kitchen is provided measuring about 10 feet 11 inches and 9 feet 11 inches with an attached utility space measuring about 10 feet 9 inches and 8 feet. The two bedrooms located in the southwest measures about 12 feet 7 inches and 12 feet 11 inches. The bedroom located in the north east direction measures about 11 feet 1 inches and 14 feet 5 inches which has an attached bathroom measuring about 6 feet 7 inches and 8 feet.
The first floor consists of a living area measuring about 12 feet 2 inches and 17 feet 1 inches. The balcony, which is directly connected to this, measures about 24 feet 6 inches and 5 feet 3 inches. A common bathroom in the southwest direction measures about 8 feet 5 inches and 6 feet 5 inches. With a mini home theatre in the southeast direction measures about 10 feet 8 inches and 26 feet 2 inches.The bedroom in the southwest direction measures about 12 feet 5 inches and 12 feet 11 inches. And the bedroom in the northeast direction measures about 11 feet 1 inches and 14 feet 6 inches, with the bathroom measuring about 12 feet 5 inches and 5 feet 3 inches. This house plan includes 4BHK.
The terrace floor consists of a headroom measuring about 5 feet 6 inches and 17 feet 8 inches. And the laundry space is located in the southwest direction measuring about 8 feet 5 inches and 6 feet 5 inches. The storeroom measures about 12 feet 6 inches and 12 feet 11 inches. The open terrace measures about 23 feet 9 inches and 55 feet 1 inches.









