Plan Number:
RL0194
Vastu Score: 55%
House Plans For 30x45 ft North Facing A Residential Unit RL0194
Experience this plan in 3D 👇

Plan Size
30 x 45
Plan Face
North
BHK
2BHK
Complete 2D House Plan Layout
1BHK rental 30 by 45 House plan with north facing, parking and 2BHK for rental with passage, utility and store room
This outlines house plans for a property measuring 30 by 45 meters with north-facing sides that was primarily constructed for generating rental income. The building has three floors in addition to a terrace. The ground has one available 1BHK rental unit and the first floor features a spacious 2BHK luxury rental house. All construction follows the principles of Vastu Shastra. The second floor mirrors the first aside from containing identical structures. Located on the terrace floor is a small storeroom alongside an expansive terrace.
Apart from the 1BHK rental unit, the parking area on the ground floor is wide, measuring approximately 29′ × 25′. Additionally, the main door of this unit faces due north. The living hall is spacious, measuring 12′4″ x 9′5″. An open modular kitchen with dimensions of 12′4″ × 6′7″ has also been provided. The bedroom, located southwest of the house, measures 11′ x 16′6″, and also comes with an attached washroom measuring 6′9″ x 4′. To provide for ventilation, setback areas are provided: 2 feet on the left and right sides and 1 foot 5 inches at the rear.
The details regarding our first floor include a singular 2BHK luxury unit featuring a southern exposure. The foyer in front of the main door is 14’2’’ by 6’8’’ and the living room is 12’ by 16’2’’, which is spacious. An open modular kitchen is included and measures 9’2’’ by 13’1’’ while the utility space directly connected to the kitchen measures 3’ by 13’2’’. In front of the dining area, there is a small puja room that measures 2’11’’ by 3 ’1’’.
The southwest bedroom on this floor measures 11’2” by 16’7’’ with an attached washroom of 6’9’’ by 4’6’’. The northwest bedroom measures 10’11’’ by 11’7’’ and includes an attached washroom of 6’9’’ by 4’0.
The second floor mirrors the first floor precisely in layout and dimensions.
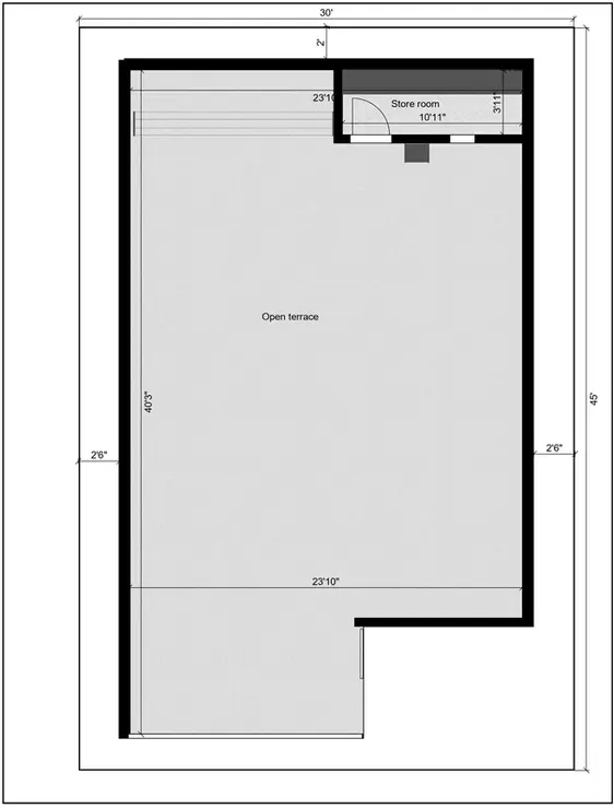
The terrace contains a small storeroom as well as an open terrace measuring 23’10’’ by 40’3’’.





