Complete 2D House Plan Layout
2BHK rental 30 by 40 House plan with east facing, parking, pooja room, drawing area and store room
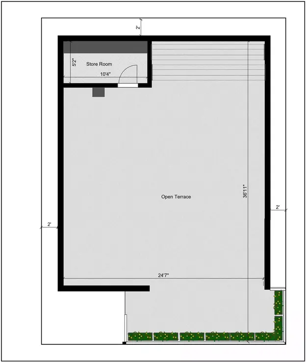
This is an east-facing 30 by 40 house plan 3D plot which has been elaborately designed for better rental opportunities while observing Vastu relaxation. The layout guarantees an adequately fulfilling living experience with spacious and all-inclusive bedrooms alongside attached washrooms. A 2BHK house occupies the ground floor, which is further enhanced by a large parking space that can comfortably house all the tenants' vehicles. The 1st and 2nd floors are made up of 2BHK houses with extra features like a dining room, a puja room, and other floors. The terrace level has a small storeroom, an open terrace, and clothes drying space for the residents.
On the ground floor, there is a spacious 2BHK unit along with a meticulously planned parking space having dimensions of 29'2" × 14'6". The front door is east-facing which aids in an overall harmonious living experience. The living room is relatively snug with approximate dimensions of 16'8" × 11'2" and thus, is meant to provide comfort and space. The master bedroom is 9'10" × 11'9", along with a master washroom of 7'7" × 4" en suite. The second bedroom is closet sized with dimensions of 8' × 9'10", but does possess a dressing room with dimensions of 4' × 4', along with an attached washroom of 4' × 5'5", thereby providing greater accessibility to privacy. The kitchen is also bigger than average with an open format and measuring 7'7" × 6'7", while still ensuring adequate airflow along with a puja room extending the spiritual nurturance of the home measuring 3'10" × 4'4" within the living hall. The house has been strategically designed for optimal ventilation and the light is let in the house with the setback areas of 1'6" on three sides which would make it suitable for tenants.
The first and second floors have been constructed with large 2BHK houses, suitable for contemporary living. Each unit comes with a designated drawing room, a sitting area, and a large porch which measures 6’4” x 21’. All units face east, and so the main door for each unit faces east as well, ensuring Vastu compliance. The drawing room, which has the dims of (16’8” x 7’9”), comes with a dedicated puja area (3’3” x 3’5”) to make it more suitable for spiritual activities. The living area has the dimensions of (16’8” x 11’2”) which is meant for relaxation, entertainment, and leisure activities. The open kitchen (7’7” x 7’9”) has direct access to the dining room which has the measurements of (7’7” x 6’8”) and helps to foster a warm atmosphere for dining.
The master bedroom (9’10” x 11’9”) comes with an attached bathroom (7’7” x 4’) while the second bedroom (8’ x 9’10”) comes with a draping room measuring (4’ x 4’) and an on suite (4’ x 5’5’) bathroom. Both bathrooms provide comfort while ensuring privacy. The roof terrace increases the practicality of the building. Furthermore, the terrace is 24’7” x 36’11” and serves as an open space for physical activity. Residents will also appreciate the convenient cloth drying provisions that have thoughtfully been added.This rental property is achieved by balancing attractive appearance with functionality and Vastu compliance. Design and layout is based on comfortable living, peaceful environments, and efficient inflation return. The property is suitable for tenants who appreciate modern day luxuries and require good ventilation.






