House Plans by Size Select
20 x 20 ft Plans

45 x 40
RR
West
45 x 40 ft West Facing House Plan Of The Residential Building Facing In West Direction
RR0005
Rating
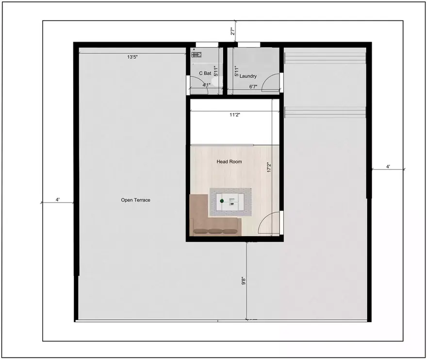
This is a west-facing 45x40 3BHK duplex house plan constructed based on the special features like study room, balcony area, spacious parking area, along with the headroom. This is a three-floor building. The ground floor consists of one bedroom with attached washroom, living area, kitchen, dining hall, and utility space. The first floor consists of two bedrooms with attached washroom, study room, family hall, and the balcony. The terrace floor consists of spacious open terrace along with the headroom and laundry space.
The ground floor consists of spacious packing area. The main door of this house is in north direction. Living area measures about 17 feet 6 inches and 10 feet 11 inches. Kitchen in the south-east direction measures about 10 feet 4 inches and 9 feet 6 inches. The dining hall measures about 10 feet 4 inches and 7 feet 1 inches. The common bathroom in the north-west direction measures about 7 feet and 4 feet 1 inches.The bedroom in the northeast direction measures about 13 feet 5 inches and 11 feet 11 inches with attached bathroom measuring about 4 feet 1 inches and 5 feet 11 inches. The utility area directly connected to the kitchen in the northeast direction measures about 6 feet 7 inches and 5 feet 11 inches. The setback area in right side it is 3 feet 5 inches and at left side it is 3 feet 6 inches and at back side it is 2 feet 1 inches.
The first floor consists of two bedrooms. The first bedroom in the northeast direction measures about 13 feet 5 inches and 11 feet 11 inches, with attached bathroom measuring 3 feet 11 inches and 5 feet 11 inches. The second bedroom in the southeast direction measures about 11 feet 11 inches and 18 feet 6 inches, with attached bathroom measuring 6 feet 7 inches and 5 feet 11 inches.The study room in the northwest direction measures about 13 feet, 4 inches, and 11 feet, 1 inches with attached bathroom measuring about 7 feet, 1 inches, and 4 feet, 1 inches. The family hall measures about 11 feet, 2 inches, and 11 feet, 7 inches. The balcony area measures about 25 feet, 8 inches, and 14 feet, 10 inches, which is directly connected to the family hall.
The terrace floor consists of spacious headroom measuring about 11 feet 2 inches and 17 feet 2 inches with a laundry room measuring about 6 feet 7 inches and 5 feet 11 inches with attached bathroom measuring about 4 feet 1 inches and 5 feet 11 inches. Open terrace measures about 34 feet and 13 feet 5 inches.








