House Plans by Size Select
20 x 20 ft Plans

40 x 40
RR
West
40 x 40 ft West Facing House Plan Of The Residential Building
RR0006
Rating
This is a west-facing 40 40 3BHK duplex house plan provided with spacious parking, balcony, study room, and many other special features. This is a three-floor building. The ground floor consists of a spacious parking area, living hall, one bedroom, kitchen, and dining hall. The first floor consists of two bedrooms with attached washroom, common bathroom, study room, and the balcony. The terrace floor consists of party hall, headroom, and the open terrace.
The ground floor consists of a spacious parking area. The main door of this house is in the west direction. The living hall in the north-west direction measures about 17 feet 6 inches and 11 feet 1 inches. The dining hall measures about 15 feet 5 inches and 9 feet 7 inches. The kitchen in the south-east direction measures about 14 feet 11 inches and 9 feet 7 inches, attached utility measuring about 15 feet 5 inches.The bedroom in the northeast direction measures about 9 feet 10 inches and 11 feet 8 inches with common bathroom measuring 6 feet 5 inches and 4 feet 3 inches. The setback area in all three sides is 2 feet.
This first floor consists of two bedrooms. The first bedroom in the north-east direction measures about 9 feet 10 inches and 11 feet 8 inches, with a common bathroom measuring 6 feet 5 inches and 4 feet 3 inches. The bedroom in the north-west direction measures about 10 feet and 11 feet 1 inches, with the small dressing space measuring 8 feet 7 inches wide, attached bathroom measuring about 8 feet 1 inches and 4 feet 7 inches.The balcony area measures about 19 feet 6 inches and 14 feet 10 inches. The study room measures about 10 feet 11 inches and 10 feet. Balcony at the southeast direction measures about 14 feet 11 inches and 12 feet 5 inches.
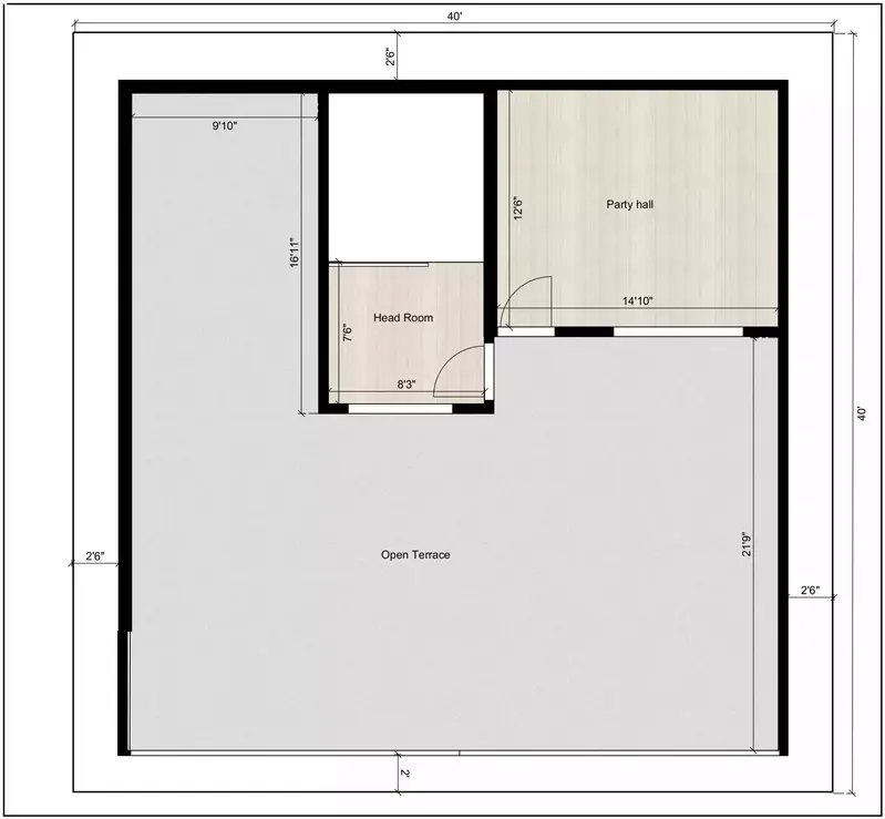
The terrace floor consists of spacious open terrace. The headroom measures about 8 feet 3 inches and 7 feet 6 inches. The party hall measures about 14 feet 10 inches and 12 feet 6 inches.








