House Plans by Size Select
20 x 20 ft Plans

40 x 40
RR
West
40 x 40 ft Duplex House Plan Of The Residential Building Facing In West Direction
RR0007
Rating
This is a west-facing 40 by 40 4BHK duplex house plan provided with special features like parking area, dining hall, open terrace, and many more. This is a three-floor building. The ground floor consists of two bedrooms, living hall, parking area, attached bathrooms, kitchen, garden space, and many more. The first floor consists of two bedrooms with attached washroom and open terrace. The terrace floor consists of open terrace.
The ground floor consists of a parking area measuring about 15 feet 5 inches and 13 feet. There is a small parking area provided along with a small garden space in the northwest direction. The main door of this house is in the west direction. The living area measures about 14 feet 11 inches and 10 feet 1 inches. The kitchen in the southeast direction measures about 14 feet 11 inches and 9 feet 6 inches. The utility connected to the kitchen area measures about 17 feet 5 inches and 5 feet 2 inches.The first bedroom in the north-east direction measures about 9 feet, 10 inches and 11 feet, 8 inches with common bathroom measuring about 6 feet, 5 inches and 4 feet, 3 inches. The second bedroom in the north-west direction measures about 10 feet and 11 feet with the small dressing table space measuring 8 feet, 7 inches with attached bathroom measuring 8 feet, 1 inches and 4 feet, 7 inches.
The first floor consists of two bedrooms along with the open terrace.The first bedroom in the north-east direction measures about 9 feet, 10 inches and 11 feet, 8 inches with common bathroom measuring about 6 feet, 5 inches and 4 feet, 3 inches. The second bedroom in the north-west direction measures about 10 feet and 11 feet with the small dressing table space measuring 8 feet, 7 inches with attached bathroom measuring 8 feet, 1 inches and 4 feet, 7 inches. Open terrace measures about 15 feet and 34 feet 8 inches.
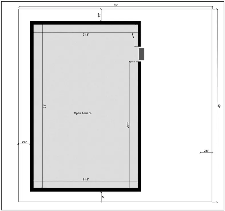
Terrace floor consists of spacious open terrace measuring about 21 feet 8 inches and 34 feet








