Complete 2D House Plan Layout
Modern house design duplex north facing plan 4 bedroom with car parking
This is a north-facing 40 x 35 ft (12.2 x 10.67 mtr ) 4BHK duplex house plan, provided with special features like family hall along with study space, laundry room, balcony, and many more. This is a three-floor building. The ground floor consists of spacious parking area along with a living hall, one bedroom with common bathroom, kitchen. The first floor consists of three bedrooms with attached washroom, family hall, and the balcony. The terrace floor consists of laundry room, headroom, and open terrace.
The ground floor The kitchen measures about 13 feet 1 inches and 6 feet 10 inches located in the southeast direction. spacious parking area measuring about 11 feet 8 inches and 17 feet 2 inches located in the northwest direction. The main door of this house is in east direction. Living area located in the northeast direction measures about 24 feet and 12 feet 9 inches. The bedroom in the southwest direction measures about 12 feet 3 inches and 13 feet 7 inches. The set pack area at back side is 2 feet. The setback area right and left side is 2 feet.
The first floor The family hall measures about 10 feet 7 inches and 12 feet 8 inches. and three bedrooms. The first bedroom in the south-east direction measures about 12 feet 11 inches and 7 feet. The bedroom in the south-west direction measures about 12 feet 3 inches and 13 feet 7 inches, with a common bathroom measuring about 7 feet 8 inches and 5 feet 6 inches. The bedroom in the northeast direction measures about 12 feet 11 inches and 8 feet 11 inches. The balcony directly connected to the family hall measures about 9 feet 7 inches and 13 feet 2 inches.
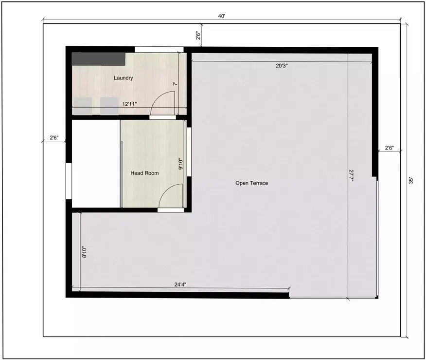
The terrace floor laundry room in the southeast direction measuring about 12 feet 11 inches and 7 feet. The headroom measures about 9 feet 10 inches. The open terrace measures about 20 feet 3 inches and 27 feet 7 inches.





