House Plans by Size Select
20 x 20 ft Plans

40 x 30
RQ
East
3BHK House Plan In 40 x 30 ft Plot
RQ0001
Rating
This is a East-facing 40 x 30 ft (12.2 x 9.15 m ) 3BHK duplex houseplant constructed with special features like living area, balcony, open terrace, and the headroom.This is a three-floor building, ground floor, first floor, and this terrace floor. The ground floor consists of one bedroom with a living area, parking area, kitchen, and common bathroom. The first floor consists of two bedrooms with attached washroom, balcony, and the family hall. The terrace floor consists of open terrace along with the headroom.
The ground floor The common bathroom located near the kitchen measures about 8 feet 4 inches and 4 feet 4 inches. big parking area located in the northeast direction measuring about 19 feet 7 inches and 9 feet 7 inches. The main door of this earth is in the east direction. Living area measures about 15 feet 8 inches and 17 feet. The kitchen located in the southeast direction along with the dining area measures about 15 feet 11 inches and 9 feet 1 inches. The bedroom in the southwest direction measures about 16 feet and 10 feet.
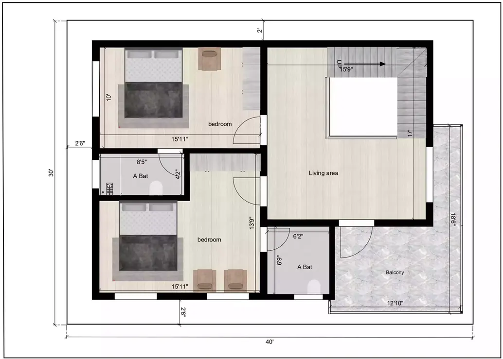
The first bedroom in the southwest direction measures about 15 feet 11 inches and 10 feet with an attached bathroom measuring 8 feet 5 inches and 4 feet 2 inches. The bedroom in the southeast direction measures about 15 feet 11 inches and 13 feet 9 inches with attached bathroom measuring 6 feet 2 inches and 6 feet 9 inches.The balcony area directly connected to the living area measures about 12 feet 10 inches and 18 feet 6 inches.
The terrace floor open terrace measuring about 21 feet 9 inches and 24 feet 3 inches with attached headroom measuring about 9 feet 10 inches and 8 feet 3 inches.








