Plan Number:
RO0001
Vastu Score: 98%
35x75 ft East Facing Duplex House Plan RO0001
Experience this plan in 3D 👇

Plan Size
35 x 75
Plan Face
East
BHK
Complete 2D House Plan Layout
Modern duplex luxury house design with 6 bedroom east fcaing plan along with car parking
Modern duplex luxury house design with 6 bedrooms East facing plan along with the car parking.
This is a east-facing 35 x 75 ft (10.668 m × 22.86 m) 6BHK duplex house plan provided with the special features like spacious mini home theater, living hall, and many more. This is a three-floor building. The ground floor consists of three bedrooms with an attached washroom. The first floor consists of three bedrooms with an attached washroom, open terrace, and the terrace floor. The second floor consists of an open terrace along with the headroom.
The ground floor consists of a parking area measuring about 16 feet 8 inches and 24 feet 5 inches. The main door of this house is in the South-East direction. The living hall is located in the North-East direction measuring about 13 feet 10 inches and 15 feet 7 inches. The kitchen in the South-East direction measures about 11 feet 10 inches and 9 feet 5 inches. The open utility directly connected to the kitchen measures about 9 feet and 7 feet 4 inches. There is also a common bathroom located in the South-West direction measuring about 5 feet 10 inches and 8 feet 2 inches.The bedroom in the southwest measures about 19 feet 4 inches and 11 feet 6 inches, with an attached bathroom located in the northwest corner measuring about 8 feet 8 inches and 5 feet 11 inches. A northwest bedroom measures about 12 feet 4 inches and 10 feet 3 inches, which has an attached bathroom measuring 8 feet 8 inches and 5 feet 5 inches. A bedroom in the northwest measures about 12 feet 4 inches and 10 feet 7 inches, with a study room measuring about 11 feet 7 inches and 10 feet 5 inches, with an attached bathroom measuring 5 feet 8 inches and 8 feet 2 inches.
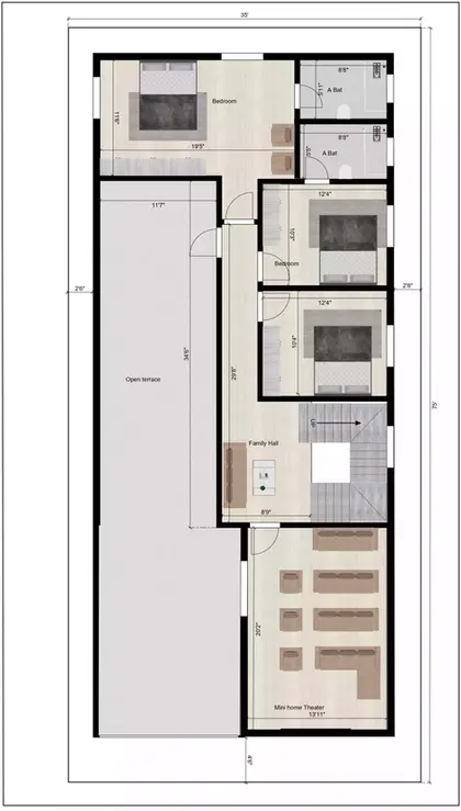
The first floor consisted of mini home theatre measuring about 13 feet 11 inches and 20 feet 2 inches the family hall in the north east direction measures about 9 feet 4 inches and 12 feet 2 inches.The bedroom in the southwest measures about 19 feet 4 inches and 11 feet 6 inches, with an attached bathroom located in the northwest corner measuring about 8 feet 8 inches and 5 feet 11 inches. A northwest bedroom measures about 12 feet 4 inches and 10 feet 3 inches, which has an attached bathroom measuring 8 feet 8 inches and 5 feet 5 inches. A bedroom in the northwest measures about 12 feet 4 inches and 10 feet 7 inche. The open terrace measures about 7th 11 feet 7 inches and 55 feet
The second floor consists of headroom measuring about 6 feet 5 inches and 12 feet 1 inches with the specials open terrace measuring about 6 feet 1 inches and 19 feet 5 inches




