Complete 2D House Plan Layout
Modern Duplex 4 bedroom house plan north facing design with car parking, garden, pantry room, study room, balcony
North facing 4BHK Duplex house plan of 35 x 60 ft (10.67 x 18.29 m) and this is duplex plan with G+2 floor and Here Ground floor includes utility area around 2.6 length with parking area for car standing and lawn for gardening and here we see entrance for main door placed in north direction then living hall with stairs in southwest direction which moves along east to west direction, open kitchen and dining, 1 common toilet, pantry, master bedroom with attached bathroom and bedroom with attached bathroom. The first floor consists of free space area around 3 and 8.6 length and after passing through west direction and we see family hall with balcony and washing area, 1 common toilet, study room with an attached bathroom and 2 bedrooms with attached bathrooms. The second floor consists of free space area around 3 and 8.6 length and after passing through west direction and we see headroom and an open terrace for leisure activities such as sitting, resting and gardening and here we also provide duct for ventilation and windows for proper light and air.
Ground floor consist of parking area in northwest size 17.8 x 16 ft and lawn in northeast size 15.8 x 8 ft and here entrance for main door placed in north direction then living hall in west size 14.8 x 17.2 ft with stairs in southwest which moves along east direction (up) and pantry in southeast size 8 x 5 ft, open kitchen and dining in southeast size 12 x 19 ft, common toilet in southeast size 8 x 5 ft, bedroom in northeast size 12.6 x 12 ft with attached bathroom size 8 x 4.2 ft and master bedroom in southwest size 10.8 x 14 ft with attached bathroom 4 x 8.6 ft.
Moving to the first floor, after passing through west direction for stairs then we see family hall in west size 14.8 x 17.2 ft with attached balcony in northwest size 14.6 x 7.10 ft and washing area in southeast size 8 x 5 ft, common toilet in southeast size 8 x 5 ft, study room in northeast size 12.6 x 12 ft with attached bathroom size 8 x 4.2 ft, bedroom in southeast size 12 x 14 ft with attached bathroom size 8 x 4.6 ft and bedroom in southwest size 10.8 x 14 ft with attached bathroom 4 x 8.6 ft.
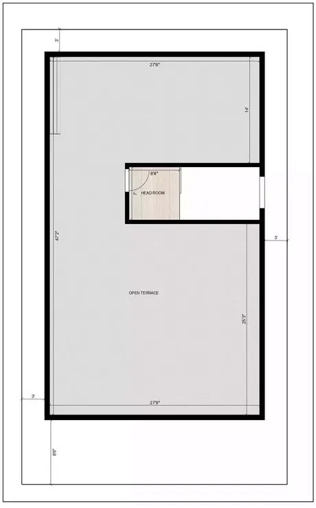
Next to the terrace floor, after pacing through stairs form west direction and we see headroom size 6.8 x 7 ft and an open terrace size 27.8 x 47.2 ft.





