Complete 2D House Plan Layout
3BHK rental 35 by 55 House plan with east facing, parking, lift, passage, utility, pooja room, balcony and laundry
This is a Residential Building located towards East direction with 3 bedrooms surviving parallel to the East and measuring 35'x 55' feet, this is the design with G + 3 floors. This also has ground floor with bike parking space and an area for garden and the stairs in the northeast It goes from west to east with lift in northwest of parking area. The first floor add on floors have includes utility area of around 2'1" and 2'6" length. We access the upper floors through stairs that head to the east and there is a passage area towards the door with the lift located in the passage in the north west together with the entrance the windows facing southwest. The main door is here and the living hall, study room ,dining hall with a balcony for pooja room, three bedrooms with bathrooms and open-plan kitchen with adjoining laundry, gas, and cleaning utility room are located on the upper floor.
From the second floor, there is an open terrace meant for leisure activities like sitting, resting, or even gardening. To the left is the balcony which provides an outside view for gardening with the lift entrance. In the northeast corner, there's a door leading to theidoncil open terrace. This space also has windows for proper ventilation, ample light, and fresh air. Constructed on the third floor is additional utility area around 2'1” and 2'6”; with the stairs facing the east side, there are two balconies, one positioned to the north and another to the west. The external view from the southern balcony is stunning. In my perspective, the view is breathtaking. The next step involves being provided with the building plan measurements alongside the descriptions.
Ground Foor
The area build up located on the ground floor, is 35’x 55’ resulting in a total of 1925sqft. In the 35 55 house plans east facing 3 bedroom, the ground floor includes a parking area sized 34' by 54', and there are stairs located in the northeast corner. There is a lift in the northwest measuring 6’1” x 5’7”. Furthermore, there are stairs in the east direction that lead up through a space measuring 6’9” by 9’10” into the hallway that contains the lift.
First floor
First floor buildup area: 30’ x 50’5” = 1512.3 sqft .The main door opens into the living hall which is aligned towards the north, measuring 10'11" x 15'4". There is a study room to the northwest which measures 8'6" x 5'7", with a dining hall in the northeast sized 10'11” x 10’1” and a balcony that measures 17’9” x 5’4”. Additionally, there are two pooja rooms sized 6'7” x 3’2”. There are also three bedrooms, one situated in the southwest measuring 12'10" x 16'8", and is equipped with an attached bathroom sized 7'10" x 3’11". The other bedroom located to the south is sized 10'8" x 15'4" and has an attached bathroom measuring 7’3” x 4’. Lastly, another bedroom sits in the northwest measuring 10’8” x 10’7”, with an attached bathroom sized 4'3” x 6'1”. An open kitchen is in the southeast measuring 10'8” x 11'11” and has an attached utility area sized 10'8" x 3'6".
Second floor
Second floor buildup area: 30’ x 50’5” = 1512.3 sqft. After ascending via steps coming from the east direction, the first area encountered is a passage of dimension 6’9” x 9’10” with a lift located in the Northwestern corner at 6’1” x 5’7” and here a main door located at the Western side opens into Living stairhall facing Northerly direction of dimension 10’11” x 15’4” which encompasses a study room located to the Northwest of 8’6” x 5’7” and dining hall to the Northeast which is 10’11” x 10’1” with a balcony of dimension 17’9” x 5’4” and Pooja Room of measurement 6’7” x 3’2” bedroom is located in SouthWest of size 12’10” x 16’8” with attached bathroom of 7’10” x 3’11” east side bathroom, southern bedroom is size 10’8” x 15’4” with bathroom of 7’3” x 4’ northern side, Northwestern bedroom is 10’8” x 10’7” with bathroom 4’3” x 6’1” east and open kitchen located to Southeast measuring 10’8” x 11’11” with utility 10’8” x 3’6” adjoined.
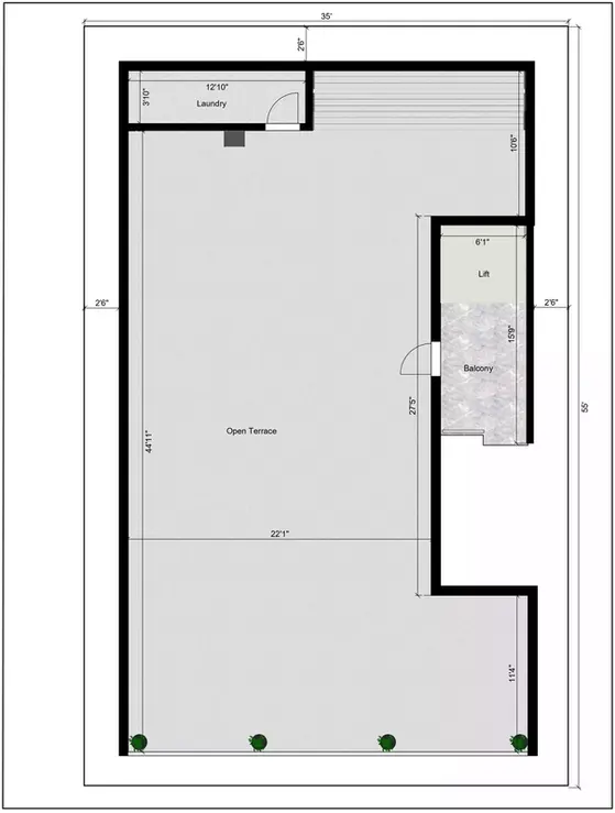
Third floor
Third floor buildup area: 30’ x 50’5” = 1512.3sqft. After ascending via the steps incoming from the eastern part, first area encountered is a balcony of dimension 6’9” x 9’10” appended with the elevator at the Northwest part of the balcony of dimension 6’1” x 5’7” and the open terrace of dimensions 22’1” x 49’6” filled with laundry is in the South Western part of the South Western of size 12’10” x 3’10” in this 35 55 house plans east facing 3 bedroom.





