Complete 2D House Plan Layout
1BHK rental 35 by 50 House plan with south facing, parking and 2BHK for rental with passage, pooja room and store room
This is a meticulously crafted south-facing 2 bedroom, 2 bathroom (2BHK) house with an additional 1 bedroom (1BHK) unit on a 35 by 50 feet (35’ x 50’) plot. The 2BHK unit consists of a ground floor, upper floor, first floor, and terrace floor, all along with a distinctively designed layout.
The first floor includes a living lobby that is 12 feet and 4 inches by 11 feet and 6 inches (12’4” x 11’6’’) along with an entrance situated in the northeast corner. The wide parking area measuring around 34 feet by 23 feet and 11 inches (34’ x 23’11”) is on the ground level. The staircase is located in the southwest corner of the parking space and moves up to the top while the main door is positioned to the east. Furthermore, there is an open kitchen attached in the southeastern corner, measuring 12 feet and 10 inches by 9 feet and 6 inches (12’10” x 9’6”). In the southwest corner, there is also an expansive bedroom that is 12 feet and 2 inches by 16 feet and 10 inches (12’2” x 16’10”) along with an attached bathroom.
On the first floor, there is a 17-foot 6-inch by 6-foot 4-inch passage situated at the entrance near the stairs. The main door, once again facing east, opens into a larger living hall in the northeast measuring 12 feet 2 inches by 12 feet 5 inches. This level offers two bedrooms one in the north-west measuring 12 feet 4 inches by 11 feet 11 inches and another in the south-west measuring 12 feet by 16 feet 6 inches which also features an attached bathroom of 8 feet by 4 feet 5 inches. To add convenience, there is an additional common bathroom measuring 8 feet by 4 feet 2 inches. In the southeast corner, the kitchen features an open plan with dimensions of 12 feet 7 inches by 16 feet 6 inches and the pooja room in the northeast is small yet peaceful measuring 5 feet by 4 feet 5 inches.
The second floor replicates the layout of the first floor, preserving the design symmetry and continuity.
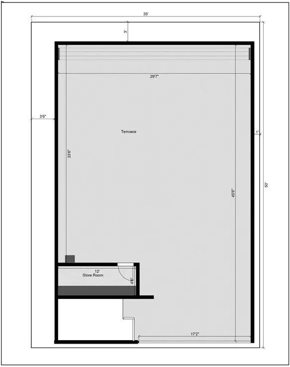
Lastly, the terrace floor integrates utility with an expanse of unobstructed open area. A storage room measuring 12 feet by 4 feet 6 inches sits in the southwest corner, which leaves the terrace as a massive open space measuring 29 feet 7 inches by 45 feet 6 inches, ideal for leisure activities, social gatherings, or simply enjoying the outdoors.
This combination of features offers split level surveillance from a bird eye view to anyone at the ground level, which adds a unique metaverse and fantasy like experience.
This blend adds a brilliant touch to the design by introducing elevation, three-dimensional forms along with added varieties in routing and accessibility across various floors of the structure. Further, it adds a vibrant atmosphere when amalgamated with greenery environment while simultaneously separating traffic spaces from staying areas.
The Steps constitute a basic structural component. They provide easy movement from lower to upper levels of the terrace and form part of the functional area.
This blending include but are not limited to paving stones, loam with seedlings, which on growing add additional dynamic attires blended with static components like the step stones completing the flavourful environment.





