Complete 2D House Plan Layout
35 by 35 north facing 3BHK duplex house plan with parking and vastu principles
This duplex house is designed G+3 with a total area of 35*35 sqft and has 4 floors. It features a well-balanced spatial arrangement. The ground floor has a parking area, living hall, pooja room, open-kitchen, and a bedroom attached to a bathroom. The first floor consists of a family living hall, two bedrooms with private bathrooms, and a study room. A mini home theatre, laundry room, and another bedroom with an attached bathroom are on the second floor. An open terrace with plenty of room for leisure activities is found on the third floor.
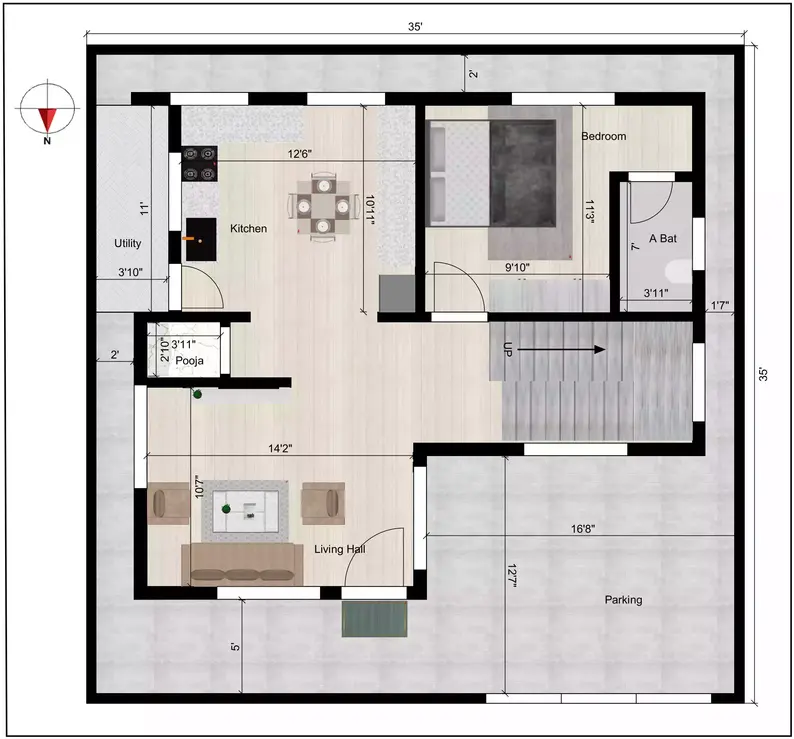
The ground floor has room dimensions listed in the table. The total area is 1225 sqft. Parking space is 16'8'' x 12'7'', while the main entrance is on the north side, next to the living hall, which has a size of 14’2” x 10’7". The staircase starts on the western side and moves to the east. There is a pooja room on the eastern side, measuring 3'11” x 2'10”“ and where the open kitchen with dimensions of 12’6’” x 10’11” is located on the south-eastern side. The bedroom in the south-west has measures of 9’10” x 11’3”, attached bathroom 3’11” x 7.
The dimension of the family hal is 14'3'' x 14''. The first floor has a built up area of 991.25 sqft. A North Balcony's dimension is 30'4'' x 4'1''. The south east bedroom has a dimension of 14'3'' x 11'' along with a quad shaped bathroom that is 4'2'' x 7''. Also, there is a 9'10'' x 11'' dimensioned bedroom in southwest direction with a bathroom that is 7' x 3'11'' attached to it. There is a study room in Northwest direction that measures 14'2'' x 7''.
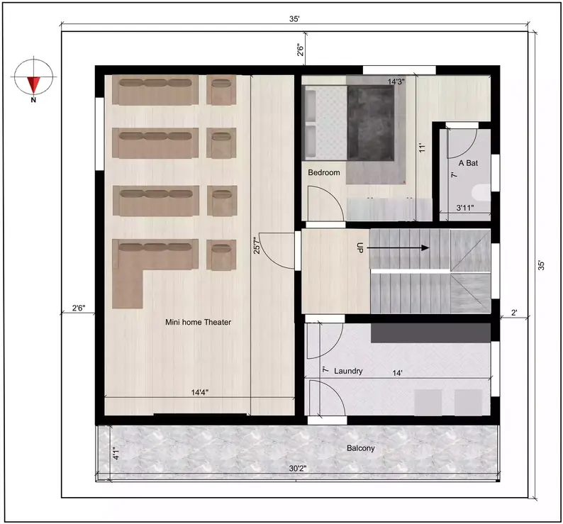
Also having a built up area of 991.25 sqft the second floor contains free space area measuring 5'3'' x 6'2''. There is also a southwest bedroom that is 14'3'' x 11'' in dimension with an attahced 7' x 3'11'' bathroom. A 30'2'' x 4'1'' balcony in the North region is also present . A 14' x 7'' laundry space is in Northwestern direction, while a home theater is 14'4'' x 25'7'' located in the East.
The Third floor also has a built up area of 991.25 sqft with headroom of 5'8'' x 6'6''. The open terrace provides two directions, which are North 29' x 11'7'' and South 29' x 11'.This house plan optimally utilizes the space, while ensuring comfort, functionality, and an abundance of natural light. I can assist you with modifications or other details if you would like.






