Complete 2D House Plan Layout
North-facing 2BHK rental house plan with parking and western design
This house plan is 35’ x 35’ and is designed G+3, which means it has four floors. This layout is functional and comfortable. The typical allocation on the ground floor parking, gardening area, and basic living spaces. The layout on the first and second floors is the same with a living hall, open kitchen, two bedrooms, a common washroom, and a balcony for fresh air. The third floor becomes an open terrace which serves a dual purpose of relaxation and construction.
The built-up area for this floor is 1225 sqft. The ground floor also has a parking space which is 18'4" x 19'5". The stairs are oriented to the southeast and head north. Marked with the E cardinal direction, the main entrance is in the east. It leads to the private hall which has the dimensions 11'6'' x 11'2'. The common washroom in the west has the measurements 3'11" x 7'10''. The southwest part of the floor also has open kitchen 12'8" x 11'8'' and a bedroom 12'7” x 11'7”
.
The first floor boasts a balcony of 18’9“x6’7” offering a clear view for gardening or landscaping as well as space for relaxation, with a total built up area of 990 square feet. The living hall also has an eastern section which opens into the main entrance hall. A southeast section of the house contains an open kitchen measuring 13'1" x 11'9". Toward the wards, there is a southwestern bedroom measuring 12'7" x 11'7", a northwest bedroom measuring 11'2" x 11'7", and lastly a common bathroom to the west measuring 3'11" x 7'10".
The second summary is this floor also contains 990 square feet of area like the first one, hence the overall design is symmetrical.
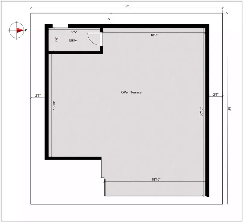
The third and last addition consists of an open terrace measuring 18’10“x 18'9' that has building integrated space which Emblembrose set aside for gardening or rest, enabling outdoor leisure activities such as relaxing. There's also a utility room in the southwest measuring 9'5" x 4'4" that accommodates appliances such as brooms and outfitted washing machines.






