House Plans by Size Select
20 x 20 ft Plans

30 x 60
RN
South
30 x 60 ft House Plan With Garden
RN0003
Rating
The 30 x 60 ft house plan with garden (9.14 x 18.29 m) is beautifully crafted in this plot. This plan incorporates designed elements with modern functionality and comfortable living space for very floor.
A south-facing, 30 feet by 60 feet, Vastu-based, 3BHK luxurious duplex houseplant consisting of special features like garden area, yoga hall, balcony, and many more. The garden space is very spacious. The ground floor has a spacious garden area, parking area, a drawing room, living hall, one bedroom, kitchen, and a puja room. The first floor has two bedrooms, a yoga hall, and a family hall. The terrace floor has an open terrace along with the headroom.
The ground floor which has spacious parking area 12 feet 8 inched by 23 feet which is used for storage vehicles or car parking. A small garden space is located in the southwest direction measuring about 15 feet 3 inches and 4 feet 11 inches. Bedroom in the southwest direction measures about 12 feet 5 inches and 12 feet 3 inches. The kitchen in the southeast direction measures about 11 feet 8 inches and 11 feet. The main door of this house is in the east direction. The living hall is very spacious measuring about 24 feet 5 inches and 17 feet 7 inches. Pooja room in the northeast direction measures about 4 feet 1 inches and 4 feet 2 inches. The utility area in the northwest direction measures about 14 feet 1 inches and 5 feet 6 inches.
The first floor balcony in the northwest direction measures about 12 feet 4 inches and 5 feet 9 inches. Attached to a bedroom in the northeast direction. This bedroom measures about 11 feet 11 inches and 11 feet 6 inches. With an attached bathroom measuring 4 feet 6 inches and 8 feet. The family hall measures about 19 feet 10 inches and 21 feet 1 inches. The bedroom in the southwest direction measures about 12 feet 5 inches and 12 feet 3 inches. With an attached bathroom measuring 4 feet 2 inches and 8 feet 6 inches. The balcony measures about 29 feet 8 inches and 5 feet 6 inches. The first floor yoga hall measures about 11 feet 6 inches and 17 feet 6 inches located in the south-east direction.
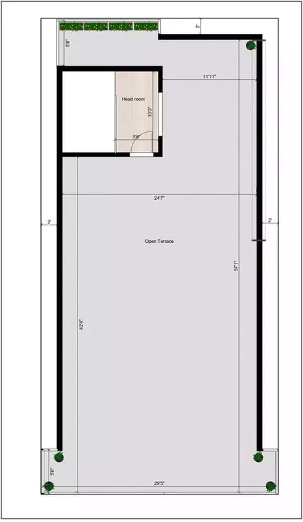
In terrace floor, a headroom measures about 5 feet 5 inches and 10 feet 3 inches and spacious open terrace measures about 24 feet 7 inches by 57 feet 1 inches which can be used for entertaining, leisure or for recreational activities.








