Complete 2D House Plan Layout
Duplex house plan size 30*55 with north facing, 4BHK, parking, utility, balcony, study room, family hall, head room and laundry
The face area of the Residential building corresponding to the house 30 55 is x 30’x 55’ feet and facing in North direction. This is duplex building with G+3 floor. Here on Ground floor There exists a utility with 2’ and 3’ length around and parking area for car standing as well as Gardening and main door is placed towards northeast then living hall with stairs in northwest which moves along east-west direction, dining hall, open kitchen cum utility with laundry and drying, cleaning area utility, washroom and bedroom coupled with ensuite bathroom. First floor includes utility space of 1’ 2’ – 06” and 3’’ utility area. After passing through staircase on the left side (west) there is living hall with balcony which could be used for gardening and gaze towards outside view, study room meant for learning and 1 Bedroom with attached bathroom. On second floor there is utility area of 2’ and 6’’ to 3’’ and after passing through staircase left (west), free space for walk-in movement and access to Hugheszub frontline set towards the stairs, 1 bedroom with attached bathroom and 1 bedroom with terraces cum bathroom and lift that leads outward to the garden or outside view.
The utility space is a mixture of 3’ and 2’6” in length, for both the area in front of the stairs and the open terrace which features a headroom for leisure activities like sitting, resting, or even gardening. For laundry purposes, cleaning clothes is also allowed. There is also 6’ length of free in front of the plan alongside proper ventilation. Which means windows were included for proper light and air. Further down we have the exact detailing and measurements in feet and inches of duplex building plan.
Ground Floor
Ground floor subtotal: 30’x 55’ = 1650sqft
In this detailed house plan measuring 30 by 55 on the north side, the ground floor contains a parking area measuring 29’ x 20’8”. The main door is placed above the parking area in a Northeast direction. Living hall size 13’3” x 13’4” with stairs in northwest direction. The dining hall in the northwest size 10’ x 7’2” is also closed off, with open kitchen in southwest size 9’6” x 11’6” and utility attached 9’3” x 4’10”. The other bedroom is southwest 13’6” x 11’3” with bathroom attached 8’5” x 4’7”.
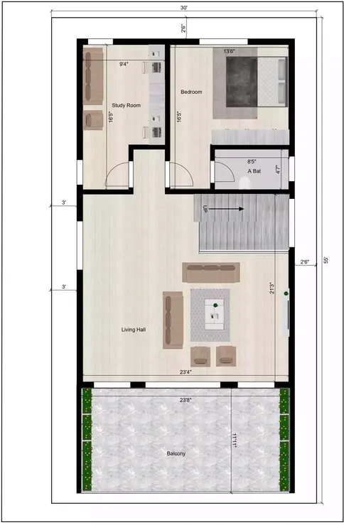
First Floor
Living Hall measures '23 4 x 21 3’ with balcony “23 8 x 11 11”, study room in southeast '09 4 x 16 5', Bedroom in southest ‘13 6 x 16 5’ with bath 8 5 x 4 7’
Second Floor
Second floor buildup area: (24’6” x 49’6”) = 1212.75sqft. As we pass through the stairs from west direction, we see free space area in front of stairs ‘14 6 x 6 8’, bedroom in north ‘23 4 x 14 1’ with bath NW ‘9 3 x 6 11’ and balcony N ‘23 8 x 9 7’, southeast bedroom: ‘14 5 x 16 5’ with bath SW ‘8 1 x 5 10’ dressing room ‘8 5 x 8 10’ in this 30 55 north face house plan.
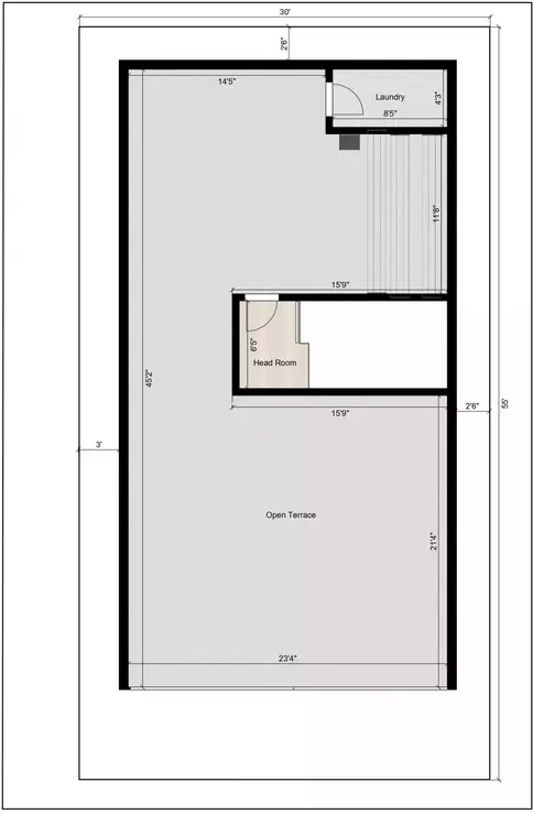
Third Floor
Third floor buildup area: (24’6” x 46’6”) = 1139.25sqft.From south direction stairs, head room 6 2 6 5’ and open terrace east ‘22 1 x 45 2’ with laundry SW ‘8 5 x 4 3’.






