House Plans by Size Select
20 x 20 ft Plans

30 x 50
RM
North
30 x 50 ft North Facing Luxurious Rental House With Ample Parking Space
RM0002
Rating
This is a luxurious rental house with ample parking space and utility facilities. The property spans out to 30’x50’ and has been designed to face north. The house consists of three floors, each designed for rental purposes. The ground floor has a 2 BHK rental house along with a spacious Puja room exhibiting Vastu Shastra compliance. Following that are the living areas with its very own utility area, wide pooja room balcony, and a first floor spacious 2 BHK house. The house is complete with Vastu doors, along with an additional mirror floor spanning terrace that contains a store room, cloth drying area, and a spacious open terrace.
Ground Floor
Beginning on Ground Floor, we have a garage poised at a measurement of 17' x 18'3" the living area being at 12'10" x 12'8". It is noted that the main entrance door is facing north which is congruent with Vastu principles.
In our continued inline approach: Master Bedroom at 11' x 11'11" which comes with en-suite bathroom (7'1" x 4') and second bedroom subtitled to dimensions of 11' x 8'3" and also has 6'6" x 4' bathroom attached. Finally, we have a Puja Room with grand dimensions of 3'7"x4' Like every other modular kitchen, the open modular kitchen has also been designed for usage purposes only. Its dimensions are 12’8’’ x 7’6’’. A utility area measuring 12’8’’ x 4’’ is located near the kitchen and can be accessed easily. Ventilation is already taken care of, as there is a 2’ setback area on both the sides of the house.
First Floor
With an additional primary floor, the house further boasts a large balcony measuring 6’’ in width, posh. It has a 2 BHK layout, ensuring sufficient space for living.
The dimension of the living hall is 24’4’’ x 11’11’’ which provides ease and comfort for all gatherings ranging from family, and friends to parties. A dining hall is also included for added comfort. One of the bedrooms measures 8’3’’ x 11’ and comes with an attached washroom measuring 6’6’’ x 4’’ and by taking the stairs, you can reach the primary bedroom which is 11’ x 11’11’’ and has an attached bath of 7’1’’4’.’ A Pooja room is conveniently placed near the kitchen, measuring 3’7’ x 4’ which ensures all Vastu instructions are followed. An open modular kitchen can also be found on the primary floor with measurements of 12’8’’ x 7’6’’ and the utility room directly linked to the kitchen measures 4 x 5’8’’. The house is ventilated properly, allowing fresh air making the house airy and pleasing to be in.
Second Floor
The structure is contained on this floor, as it follows the second story’s first floor layout exactly; everything is the same from the dimensions to the design.
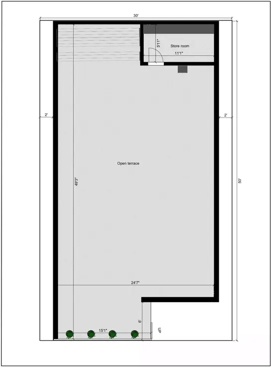
Terrace
The terrace incorporates an amusement area with a measurement of 48’3” × 24’7” which allows all kinds of extracurricular activities including an cloth drying area. Alongside this, a store room with a measurement of 5'11" x 11'1" is also available.
The rental property represented in this house meets Vastu requirements and is well ventillated and spacious, enabling residents to live comfortably and luxurioulsy.








