House Plans by Size Select
20 x 20 ft Plans

30 x 50
RM
North
30 x 50 ft North Facing House Is Thoughtfully Designed For Rental Purposes
RM0017
Rating
This house is facing north, and at a width and length of 30' by 15’ it is designed for rental purposes which ensures the residents have ample room to live luxuriously. This house is an epitome of comfort, elegance, and practical owing to the modern aesthetics and functional planning it has been built with. At an ease-of-reach tier on the lower floor are two bedrooms with accompanying facilities, along with a classically arranged dining area, which contributes to an enjoyable standard of living in the house.
This 2BHK apartment on the ground floor is planned to ensure a broad space that serves a multitude of activities and provides comfort to its residents. The property is furnished with a parking space of 13'13"×12'8" which allows the residents to enjoy the use of parked vehicles without humiliation. Entering the door on the western side allows the guests to step into a living area, 14'10"×14'1" in dimension, designed to be flooded with light and fresh air. For the convenient seclusion of the head of the family, the master bedroom, 11'1"×12'6", washroom 4'9"×8'9", has an attached bath which is of private design. The kitchen, which has a direct door opening to the dining hall, is of functional size measuring 8'11"×9'4". Additional advantages of this dining space are the utility area within it and the common toilet of 2'6"×3'11". For the convenience of guests using the common washbasin of 10'9"×4'9", the second bedroom is spacious with the u-shaped washing features. Generously sized vanities of this home stand out with practicality, as they allow relaxation when not in active use. Reducing the frontal view of the property by 1 foot on three sides of the house allows for enhanced funded value on streamlined servicing enabling elevantage on appeal of natural lighting which flows through the area and makes the home feel airy throughout the day.
Two well structured 2BHK houses are located on the first floor of the building, each featuring comfortable quarters suitable for independent living. A north facing main door opens to the living area of the first house measuring 15’1 x 12’8’. The living area is aesthetically charming due to the open-concept kitchen that (10’7’ x 7’10’) already adjoins it. A common for both bedrooms exists of 6’4” x 4’7” is a quarter bathroom. The first bedroom (10’7” x 9’3”) has a second bedroom which is a plus since it is spacious, sun-drenched, and ventilated. The second bedroom (11’ x 10’2”) comes with an ensuite bathroom. Between the two bedrooms is a spacious hallway (4'10) which further adds convenience.
The second house on this floor is also a 2 BHK, designed with a smart layout to maximize space utilization. First floor-Second house Living area 10'9" x 14'3" encloses a hot cozy cape. First floor - Second House first bedroom measures 9'11 x 8'11 and provides a cozy space. Second bedroom measures 10'6 x 10'2 and this bedroom is a cozy retreat. The open-concept kitchen (11’ x 7’3”) permits for cooking and mobility that is unobstructed. Servicing both bedrooms is a washroom (6'11" x 4'4") designed with space efficiency in mind. Servicing the bedroom house is a quiet facing passage giving 3” width, excellent for privacy.
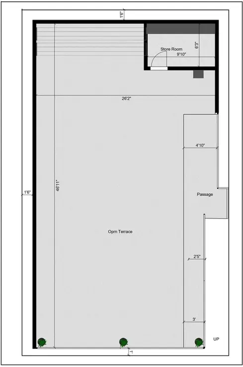
Constructed to provide convenience, the second floor has large terrace measuring 26’2”, x 46’11”” and offers views that are unmatched. There is also ample space designated for various outdoor activities, exercise, relaxing, or social gatherings. For storage needs, a storeroom measuring 9’10” x 6’3” is also provided. In addition, closet dryers have also been installed and make laundry simple and effortless.
This uniquely stands out as it beautifully merges functionality along with a spacious and comfortable living experience. It is ideally suited for those looking to earn rental income without compromising on the living standards. Modern amenities, combined with built-in furniture, optimized plumbing, and enhanced layout ergonomics provides utmost lordely convenience.








