House Plans by Size Select
20 x 20 ft Plans

30 x 50
RM
East
30 x 50 ft East Facing Site Primarily Designed For Rental Purposes
RM0011
Rating
This is a 30 by 50 feet site facing east and meant primarily for rental income streams, constructed as per Vastu. The building consists of three floors: ground, first, and second, with all floors featuring 2BHK units. The stilted parking area is complemented by a small private parking section. Each of the three houses is served with an entry door that faces East. Additionally, this house has the unique feature of a dedicated washing area, a storeroom, and a puja room on every floor. The peaceful environment provided alongside the luxury in space and designer interiors on every level ensures an unparalleled rental experience, with privacy assured as there is only a single house on each floor.
The dimensions of the parking floor area is 11' by 13’3″. The 2BHK house opens to the east direction. The living area dimensions are 16' by 15’2″. A puja unit directly adjoining the living area has dimensions of 3'10″ by 3'. The kitchen's dimensions are 15' by 14'9″, with the dining area adjoining it. A hand-wash space measuring 4′ × 14′9″ is annexed to the kitchen. A common toilet measuring 5’7” by 3’8” is located within the washing area alongside a storeroom measuring 5’7” by 3'1”. The first master bedroom is 12’1” by 12’9” and has an attached washroom measuring 8’ by 4’. The second bedroom is 12’ by 12’9” and has an attached washroom of 8’ by 4’.
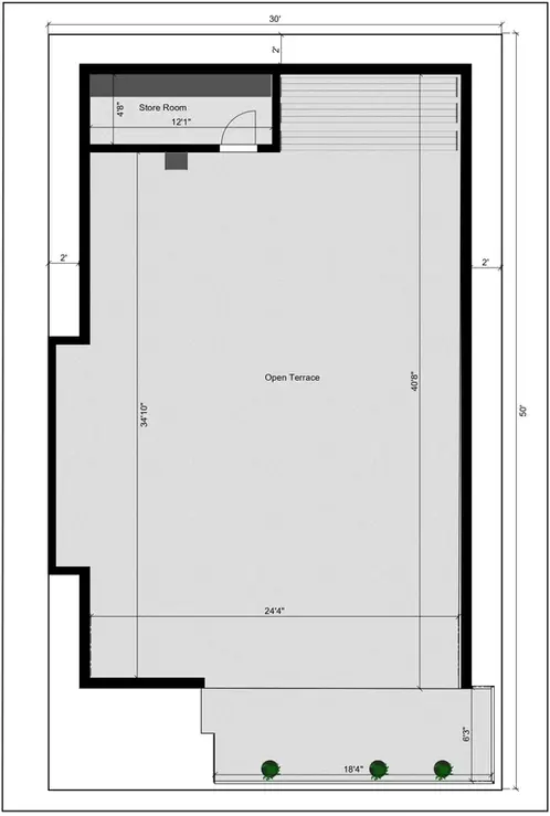
Identical to the first floor, the second level replicates the same configuration. The uppermost level consists of a storage room and an adjoining terrace. The dimensions of the storage room are 8′8 x 5′7, while the open terrace measures 40′5 × 26′6. There is absolutely no issue regarding ventilation, as a 2′ setback area has been provided on each side. The first floor consists of a 2BHK house, with its main door facing east. The entrance door is preceded by a passage 6′3” × 18′4” in size. The living room is spacious at 13′4” × 22′4”. There is also a puja room which is 4′2” × 3′ in size and is attached directly to the living area. The kitchen and dining area are combined, with a total dimension of 15′ × 14′9″. The washing area which is 4′ × 14′9″ is immediately adjacent to the dining area. In addition to the washing area, there is also a toilet which is 5′7″ × 3′6″ and a storeroom which has dimensions of 5′7″ × 3′1″. There are two bedrooms in this house. The master bedroom 12′9″ × 12′1″ is the bigger of the two and has an attached bathroom measuring 8′ × 4′. The second bedroom is 12′ × 12′9″ with a bathroom of 8′ × 4′ attached.
The first floor incorporates a 2BHK unit of which the main entrance is through the eastern side. Leading to the entrance is an entrance passage that is 6′3” long and 18′4” wide. Sizeable would be an understatement to describe the living room as it is measured at 13′4” × 22′4”. There is also a puja room which is bounded 4′2” × 3′ and directly attached to the living area. The kitchen and dining area share combined measurements of 15’ × 14′9”. Washing area forward sized 4′ × 14′9″ is adjacent to the dining area. Along with the washing area, there is also a toilet 5′7″ × 3′6″ and a storeroom 5′7″ × 3′1″. The house has two bedrooms. The master bedroom 12′9″ × 12′1″ is slightly larger having an attached bathroom that measures 8′ × 4′. The secondary bedroom is 12′ × 12′9″ has a bathroom of 8′ × 4′ attached.









