Complete 2D House Plan Layout
1BHK rental 30 by 40 House plan with south facing, pooja room, shop, parking, passage, utility and 2BHK
The southern facing 30 * 40 house plan with shop has been meticulously optimized to make sure no space is wasted, including multiple floors.
Ground Floor: The lower level of the building has been divided to address both leisure and functional needs. There is a welcoming shop cum parking area in the southwest corner with measurements of 12’ by 11’. Furthermore, there is a staircase located adjacent to the shop in the southeast corner, which leads to upper floors, next to another parking area measuring 9’11” by 12’3” in this 30 * 40 house plan with shop.
As we move toward the east, the main entrance door is set up to provide easy access to the property, which is strategically welcoming. Regarding the southeast part of the property, there is a kitchen, either closed or open, measuring 9'4'' x 7'2,' featuring some adaptability in regard to the occupants' preferences. In the southwest corner, the master bedroom is 12'1" x 11'8" and it has an adjoining bathroom measuring 4' x 6'. The north facing living area is quite generous in size, having dimensions of 22' x 16'5", and also includes a utility area measuring 6'2" x 7'8". In the northeast corner, the pooja room measuring 4’6” x 4’ provides a tranquil venue for daily prayers and other such rituals.
First Floor: Moving to the first floor, the design still follows the same pattern of ease and comfort. The passage entry followed by the stairs opens to a space that measures 4'4" x 20'3". In the eastern positioning, the main entrance door is situated again opening into the floors most central parts. To the southeast, there is an open kitchen with a generous size of 9'6" x 8'7", providing adequate space for culinary activities. The master bedroom located in the southwest part is sized 12' x11' and overlooks an attached toilet of a size 8'4" x 3'8". In the west, there is also another bedroom of smaller dimensions measuring 7'9" x 12' which has an attached toilet of 4' x 6'. The living area, looking north, measures 22' x 12' and has a seamless connection with a 6'2" x 7'9 utility space. The pooja room again positioned in the northeast measures 4’6” x 4’ and as always keeps the symmetry in the layout.
Second Floor: The design and structure of the second floor is a vivid replica of the functionality employed on the first floor of the property. This single floor plan which is more typical has the same dimensions and the arrangement of the rooms, allowing ease and cohesion to the residents within this 30 * 40 house plan equipped with a shop.
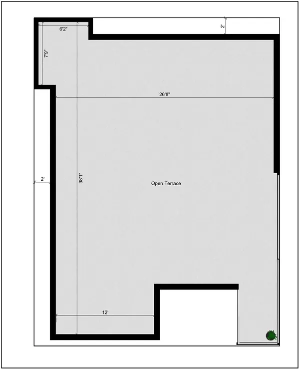
Third Floor: The third story of the property stands out because of the vast open terrace measuring 26'8'' x 38'1". The terrace is ideal for social gatherings, enjoying the sunshine, or experiencing breathtaking views.






