House Plans by Size Select
20 x 20 ft Plans

30 x 40
RL
East
30 x 40 ft House Plan 2BHK With 1BHK Rent Of The Residential Building
RL0014
Rating
The size of the Residential building is 30’x 40’ feet and facing in East direction. This is plan With G+1 floor and Here Ground floor includes utility area around 1’9” and 2’5” length and parking area for bike or car standing and gardening with stairs in southeast direction which moves along north south direction and here main door placed in northeast direction and then living hall, open kitchen with pooja room, 1 master bedroom and 1 common bathroom.
The first floor includes utility area around 1’9” and 2’5” length passing through stairs from south direction we see porch for entrance to door and here main door placed in east direction and then living hall, open kitchen with pooja room, 1 bedroom with attached bathroom, 1 master bedroom and 1 common bathroom.
The second floor is designed the same as the first floor, resembling a similar layout.
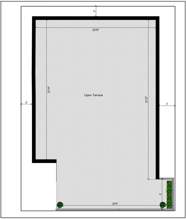
Then third floor have spacious open terrace for sitting, chatting and gardening purposes and here we also provided ventilation and windows for proper light and air.
Following this is the complete delineation of vertical and horizontal extensions of the structure in foot units.
Ground Floor
Ground floor buildup area: 30’ x 40’ = 1200sqft
In this 30 * 40 house plan 2bhk with 1bhk rent which ground floor consists of parking area size 15’10” x 17’1” with stairs in southeast direction which moves along north direction (up) and here main door placed in northeast direction then living area in north size 12’8” x 18’10”, open kitchen in southeast size 10’ x 11’9” with pooja room size 3’1” x 3’7”, master bedroom in southwest size 10’4” x 10’6” and common bathroom in south size 6’8” x 4’.
First floor
First floor buildup area: 25’9” x 38’ = 978.5sqft
After passing through stairs form south direction we see porch size 21’5” x 6’ and here main door placed in northeast direction then living area in north size 12’10” x 15’, open kitchen in southeast size 10’ x 11’9” with pooja room size 3’1” x 3’7”.
Master bedroom in southwest size 12’10” x 10’7”, bedroom in northwest size 10’2” x 10’7” with attached bathroom size 8’2” x 4’ and common bathroom in south size 6’6” x 4’ are provided in this 30 * 40 house plan 2bhk with 1bhk rent.
Second Floor
Second floor has the same floor plan as first floor - it is identical in design and structure to the first floor.
The same can be done on additional floors in the future.










