Complete 2D House Plan Layout
1BHK rental 30 by 40 House plan with east facing, parking and 3BHK for duplex with passage, pooja room, utility, family hall, balcony and open sky
Duplex 30 x 40 ft duplex house plan east facing (9.14 × 12.19 m)
30 feet by 40 feet, 1BHK rental house on the ground floor, consisting of a 3BHK duplex house from the first floor. This house is constructed in the east direction, consisting of 4 floors. The ground floor has a parking area, living hall, one bedroom, common bathroom, and kitchen. The first floor has one bedroom, common bathroom, utility area, kitchen, and puja room. The second floor has two bedrooms, a family hall, and an open sky. The third floor has an open terrace along with an open sky facility.
The ground floor parking area measures about 18 feet 2 inches and 15 feet 2 inches. The main door of the 1BHK rental house is in the east direction. The kitchen located in the southeast direction measures about 7 feet 7 inches and 12 feet 7 inches. The living hall in the northwest direction measures about 12 feet and 20 feet 11 inches. The common bathroom measures about 7 feet 1 inches and 4 feet 6 inches. The master bedroom in the southwest direction measures about 11 feet 7 inches and 10 feet. The setback area in the right side is 1 feet 8 inches, in the left side is 1 feet 11 inches, at the back side it is 1 feet 6 inches. The bedroom located in the southwest direction measures about 11 feet 7 inches and 10 feet.
The first floor puja room measures about 3 feet and 4 feet 9 inches. The passage located in the northeast direction measures about 14 feet 10 inches and 5 feet. The foyer area measures about 12 feet and 5 feet 5 inches. The kitchen in the southeast direction measures about 8 feet 1 inches and 12 feet 7 inches. The living hall measures about 12 feet 1 inches and 16 feet 3 inches. The utility area measures about 12 feet 2 inches and 4 feet 5 inches. The common bathroom measures about 5 feet 5 inches and 5 feet 9 inches.The bedroom located in the southwest direction measures about 11 feet 7 inches and 10 feet.
The second floor open sky measures about 5 feet 10 inches and 8 feet 10 inches. The bedroom in the southeast direction measures about 11 feet 7 inches and 12 feet. The dressing room measures about 7 feet 1 inches and 5 feet 7 inches. Having an attached bathroom measuring 7 feet 1 inches and 5 feet. The family hall measures about 16 feet 7 inches and 11 feet 1 inches. The master bedroom in the southwest direction measures about 11 feet 7 inches and 10 feet. With an attached bathroom measuring 5 feet 4 inches and 5 feet 9 inches.
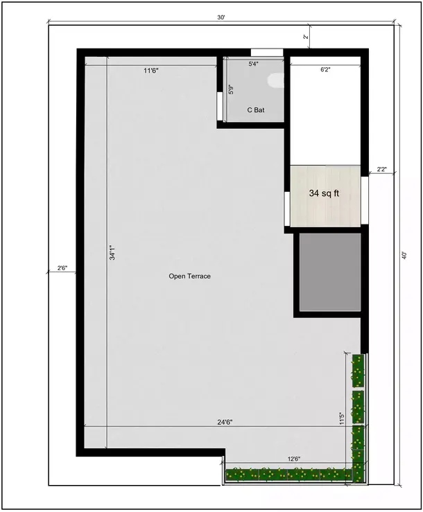
Terrace floor open terrace measures about 24 feet 6 inches and 34 feet 1 inches. The common bathroom measures about 5 feet 4 inches and 5 feet 9 inches. An open sky facility is also available.







