House Plans by Size Select
20 x 20 ft Plans

30 x 40
RL
East
30 x 40 ft 2BHK House Plan East Facing Of The Residential Building Size
RL0002
Rating
The residential house plan 30 x 40 ft 2bhk east facing of the building size
An east-facing, 30 feet by 40 feet, Vastu-based 2BHK rental house plan constructed to generate higher rental income. This house is constructed within three floors. The ground floor has a small parking area along with a Vastu-based 2BHK rental house. The typical floor has a Vastu-based 2BHK rental house.
The Ground Floor Pooja Room of the Rental House located in the North-East direction measures about 4 feet 7 inches and 3 feet. The Kitchen and Dining Hall in the South-East direction measures about 10 feet and 12 feet 1 inches. The First Bedroom measures about 10 feet and 10 feet. The Master Bedroom in the South-West direction measures about 12 feet and 10 feet 7 inches, with an attached bathroom measuring 3 feet 6 inches and 6 feet 7 inches. The common bathroom measures about 3 feet 6 inches and 6 feet 7 inches. The living area measures about 7 feet 7 inches and 13 feet 7 inches. The Main Door is located in the East direction. The Parking Area measures about 11 feet 1 inches and 11 feet 2 inches, located in the North-East direction. The Setback Area in the Right side is 1 feet 6 inches, at the Back side it is 1 feet 10 inches.
The Typical Floor Balcony located in the North-East direction measures about 11 feet 1 inches and 11 feet 2 inches. Passage measures about 3 feet 6 inches.Pooja Room of the Rental House located in the North-East direction measures about 4 feet 7 inches and 3 feet. The Kitchen and Dining Hall in the South-East direction measures about 10 feet and 12 feet 1 inches. The First Bedroom measures about 10 feet and 10 feet. The Master Bedroom in the South-West direction measures about 12 feet and 10 feet 7 inches, with an attached bathroom measuring 3 feet 6 inches and 6 feet 7 inches. The common bathroom measures about 3 feet 6 inches and 6 feet 7 inches. The living area measures about 7 feet 7 inches and 13 feet 7 inches. The Main Door is located in the East direction
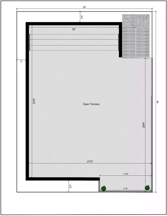
The terrace floor has an open terrace. Terrace floor open terrace measures about 27 feet 2 inches and 33 feet 9 inches.









