House Plans by Size Select
20 x 20 ft Plans

30 x 20
RJ
West
30 x 20 ft House Plan West Facing Designed With A G+3 Structure
RJ0001
Rating
This 30' x 20' west-facing house plan and G+3 floors maintains simplicity and style at it’s finest, boasting effortless comfort for modest living. Its design meets the requirements for a family layout with generous opportunities for leisure, functionality, and privacy.
Ground Floor: Base Layout Completeness
Parking Area: 11' x 16'6", provided on the north side, has ample room for vehicle space and makes it easy for gardening.
Main Entrance: Access point located in the north, has direct flow into the first room of the house which is a generous Living Hall (10' x 13'9") facing to the northeast.Open Kitchen: 17'4" at a southeast position. Kitchen is fully outfitted for cooking activities.Bedroom: 10'4" x 12'4". Bedroom attains high levels of privacy and comfort as located in the west. Attached Bathroom (4'6" x 5'7") faces northeast.Staircase: Placed conveniently north west located accesses the floors above.
First Floor: Relaxation and Utility
Main Entrance: Northeast-facing, leading directly into Living Hall (10' x 13'9") in the north.
Balcony: 3'2" x 7'6", northwest facing and brilliantly revealing outdoor views.Pooja Room: 2'7" x 3'6", northeast room designated for spiritual activities.Open Kitchen: 5'7" x 4'6", southeast located and adjoining a Utility Area (3' x 7'11”).Store Room: 3'2" x 8'9", southwest located for convenient access to storage.Common Bathroom: 3’11” x 6’6”, southwest accessible.Staircase: Western placement for privacy and functional connectivity.
Second Floor: Comfortable Living
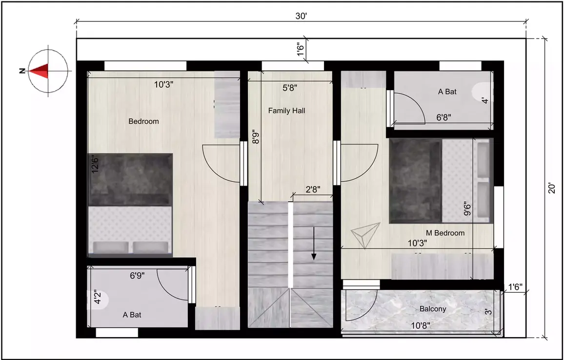
Family Hall: 5'8" x 8'9", located centrally to promote family bonding.Bedroom 1: 10'3" x 12'6", northern side available with Attached Bathroom (4'2" x 6'9")Master Bedroom: 10'3" x 9'6", south facing, includes an Attached Bathroom (6'8” x 4’) and Balcony (3’ x 10'8’’) for leisure.
Third Floor: concentration on leisure activities
Family Hall avoids the traffic towards the broad central staircase and is used as a meeting place (5’8” x 8’9’’) Master Bedroom comes with its own bathroom (attached, 4’ x 6’8’’), a south facing balcony (3’ x 10’8’’) and is - you guessed it – the largest room in the house (10’3” x 9’6’’).
Key features
Balanced combination: Compact design does not compromise comfort or space conveniences.
Balcony views: freedom, leisure, and nature – Have some time off.Bedroom utility Collaboration: connection to the bathroom is both practical and allows some level of privacy.Modern Architecture: Pooja room enhances traditional functionality.Light and Air Design: Windows designed to allow optimum light and airflow.









