Plan Number:
RM0111
Vastu Score: 92%
30 50 ft House Plan 4 BHK North Facing Plan RM0111
Experience this plan in 3D 👇

Plan Size
30 x 50
Plan Face
North
BHK
4BHK
Complete 2D House Plan Layout
Duplex house plan size 35*50 with north facing, 4BHK, parking, lift, utility, pooja room, family hall, study room, balcony, head room and pergola
The 30 50 house plan 4 bhk north facing Residential building facing in North direction whose size is 35’x 50’ feet and this is duplex plan with G+3 floor. Here Ground floor consists of the utility area along the perimeter of 1’6” x 1’7” and 3’ long spillover for the bike or car parking area and here main door placed in northeast then living hall, pooja room, 1 bedroom with attach bath and open kitchen with washer’s utility area for laundry and cleaning and Dining hall with stairs westwards and moves along the east-west direction with the lift in the middle of the stairway. The First floor comprises also utility area of about 1’11” x 2’1” and 3’ length and after changing from the West direction staircase with lift in the middle of the staircase we see the family hall for family moments in front of the staircase, as well as balcony for gardening and outside the Play (study) room for studying, and 1 bedroom with attached bath and balcony for gardening and outside view, and one more bedroom with bathroom. The second level consists of utility space measuring 1'11", 2'1", and 3' for stairs, and we start with a lift stairs view from the west, there is also head room in front of stairs, first bedroom having attached bath and open terrace overlooked for leisure activities such as sitting, resting and gardening having shade and shelter also designed in a pergola fashion. Proper light and air access has also been suitably provided through window and ventilation here. Then there is addendum containing measurements detailing floor plans of the duplex building in the height of feet and inches.
Ground floor
The build up area for the ground floor of the duplex hall @ the ground floor is: 35’ x 50’ = 1750 sqft. In this 30 50 house plan 4 bhk north facing which ground floor consists of parking area size 14’1” x 17’2” and here main door placed in Northeast direction then dining hall in Northeast size 7’10” x 9’10” with stairs in west which moves along in east direction (up) and with attached lift in middle of stairs size 4’ x 4’ and pooja room size 6’4”x4’1”, living hall in northwest size 17’2” x 14’6”, bedroom in southwest size 17’3” x 13’11” with attached bathroom size 9’1” x 5’ and open kitchen in southeast size 12’1” x 8’11” with attached utility size 12’ x 4’8”.
First floor
First floor buildup area: 31’1 x 44’11 = 1392.2sqft.After passing through stairs form west direction with attached lift in middle of stairs size 4’ x 4’ and then family hall in east size 20’9” x 14’5” with balcony in northeast size 12’1” x 12’11”, study room in southeast size 12’ x 13’11”, bedroom in southwest 17’3” x 13’11” with attached bathroom size 9’1” x 5’ .case Fn Bedroom in northwest size 17’2” x 14’6” with attached bathroom size 9’1” x 4’10” is provided in this 30 50 house plan 4 bhk north facing.
Second floor
Floor area dimensions are: 31’1” x 44’11” = 1392.2sqft. Upon traversing the stairs from the west with an attached lift in the middle of the stairs measuring 4’ x 4’, we have head room 8’4” x 12’4” with a bedroom in the southwest measuring 17’3” x 13’11” with an ensuite 9’1” x 5” bathroom and open terrace in the north measuring 29’5” x 42’3” with a pergola in the southeast measuring 12’ x 13’11”.
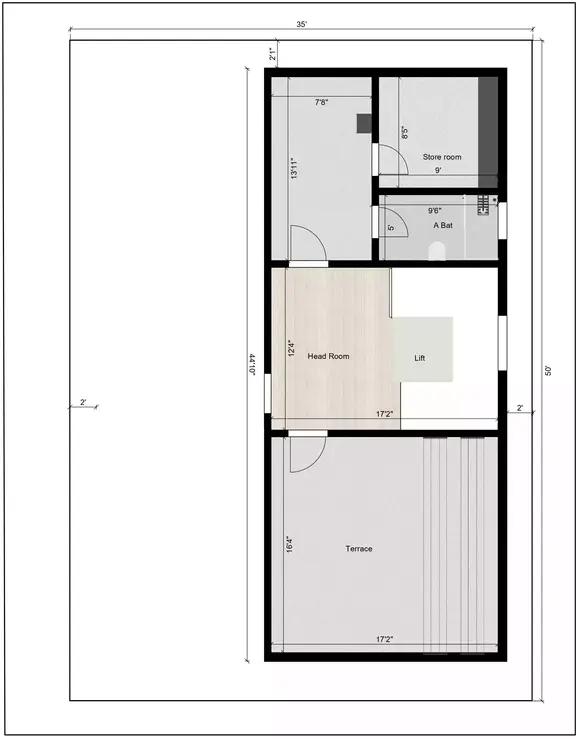
Third floor
Upon traversing the stairs from the west with an attached lift in the middle of the stairs to head room 12’4”x 17’2” we have open terrace 16’4”x 17’2” in the north, store room 8’5” x 9’ in the southwest with an ensuite bathroom 5’ x 9’6”.





