House Plans by Size Select
20 x 20 ft Plans

40 x 30
RQ
East
3 BHK House Plans 40 x 30 ft East Facing
RQ0002
Rating
This is a east-facing 40 x 30ft (12.2 x 9.15 m ) 3BHK duplex houseplant constructed with special features like puja room, spacious parking area, balcony, and many more. This is a three-floor building. Ground floor consists of spacious parking area, living hall, one bedroom with attached washroom, open kitchen, and the puja room. The first floor consists of two bedrooms with attached washroom, family hall, and the balcony. The terrace floor consists of headroom along with the open terrace.
The ground floor Open kitchen measures about 9 feet 3 inches and 9 feet 4 inches. a spacious parking area measuring about 19 feet 5 inches and 9 feet 4 inches. The living area is located in the northwest direction measuring about 15 feet 8 inches and 17 feet. The bedroom in the southwest direction measures about 15 feet 11 inches and 10 feet, with a common bathroom measuring about 8 feet 4 inches and 4 feet 4 inches. The Pooja room in the northeast direction measures about 3 feet and 3 feet 5 inches. The setback area at the right side is 2 feet, at right side it is 3 feet 5 inches, at the back side it is 1 feet 6 inches, at the front side it is 2 feet.
The first floor Family Hall in the northwest direction measures about 15 feet 9 inches and 17 feet. The first bedroom in the southwest direction measures about 15 feet 11 inches and 10 feet with an attached bathroom measuring 8 feet 5 inches and 4 feet 2 inches. The bedroom in the southeast direction measures about 15 feet 11 inches and 9 feet 1 inches.With an attached bathroom measuring about 6 feet 2 inches and 6 feet 9 inches, the balcony located in the northeast direction measures about 12 feet 10 inches and 18 feet 4 inches.
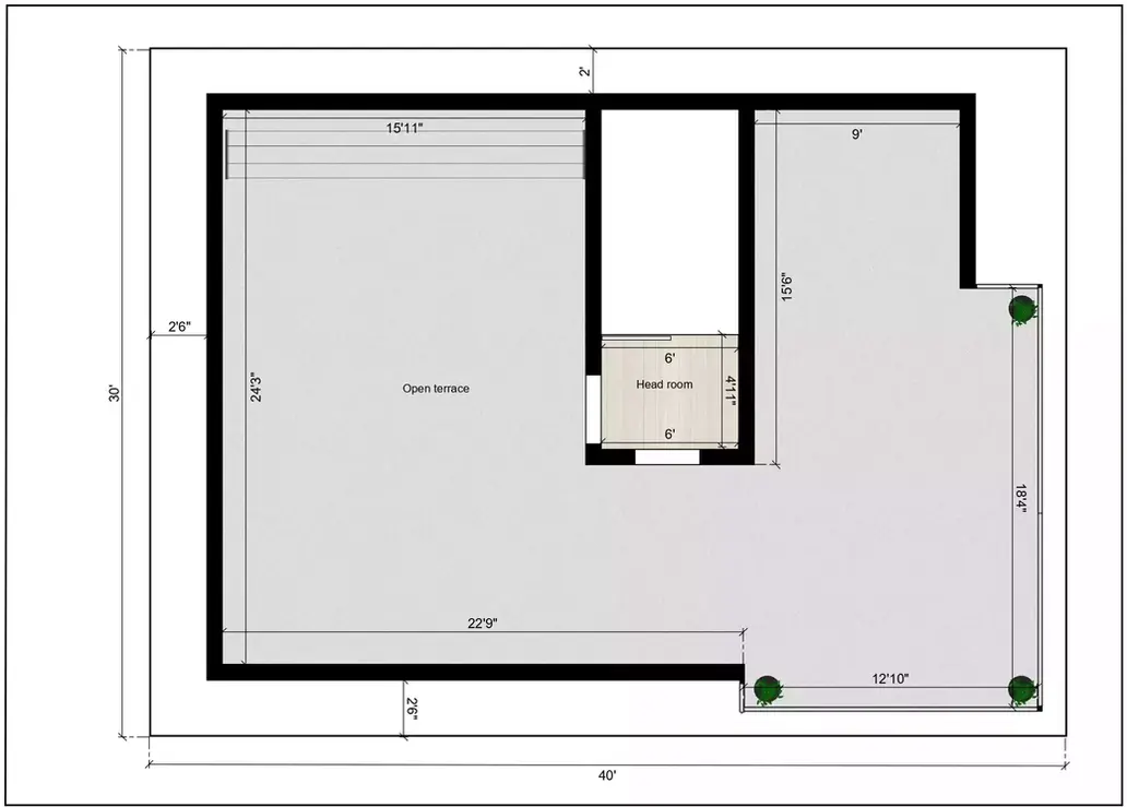
The terrace wall consists of open terrace measuring about 22 feet 9 inches and 24 feet 3 inches, with the headroom measuring about 6 feet and 4 feet 11 inches.








