House Plans by Size Select
20 x 20 ft Plans

25 x 65
RI
North
3 Bedroom House Plan 25 x 65 ft Plot
RI0007
Rating
3 bedroom house plan 25 x 65 ft plot (7.62 x 19.81 m)
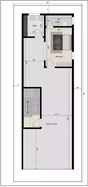
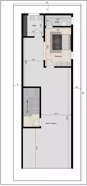
A north-facing, 25 x 65 ft, 3BHK luxurious, independent duplex house plan constructed within two floors. The ground floor has two bedrooms, utility area, kitchen, dining hall, living area, and parking space. The terrace floor has an open terrace, headroom, one bedroom, and utility area.
The ground floor main door is in the north direction. Parking in the north-east direction measures about 10.11 x 19.3 ft. The bedroom in the north-west direction measures about 9.7 x 10 ft, with the attached bathroom measuring 9.7 x 4 ft. The living hall measures about 9.1 x 13.8 ft. The bedroom in the south-west direction measures about 9.9 x 14.5 ft. The dining hall measures about 10.3 x 7.11 ft. The common bathroom measures about 4 x 7 ft. The kitchen in the south-east direction measures about 7.11 x 11.1 ft. The utility area in the south-east direction measures about 7.7 x 8.6 ft. The setback area on the right side is 2.4 ft, and the back side is 2.6 ft.
The terrace floor utility area in the southeast direction measures about 7.7 x 7.10 ft. The bedroom in the southwest direction measures about 9.9 x 14.5 ft, with the attached bathroom measuring about 9.9 x 4 ft. The open terrace measures about 11.1 x 37.4 ft.








