Complete 2D House Plan Layout
Double bedroom duplex house plan north facing with Car Parking
29 by 44 ft (8.84 × 13.41 m) house plan 2 bedroom of the Residential building
A Vastu-based, north-facing 2BHK, an independent duplex house plan, consisting of two floors. The ground floor has a parking area, living hall, master bedroom, puja room, kitchen with attached bathroom. The terrace floor has an open terrace, master bedroom, and a headroom with an attached washroom.
The ground floor parking area measures about 28 feet and 13 feet 2 inches. The main door is in the north direction. The living hall measures about 15 feet 3 inches and 16 feet 1 inches. The master bedroom in the south-west direction measures about 9 feet 11 inches and 10 feet with an attached bathroom measuring 9 feet 11 inches and 4 feet. The kitchen in the south-east direction measures about 8 feet 5 inches and 9 feet 7 inches. The puja room measures about 9 feet 3 feet 11 inches and 5 feet 9 inches. Utility area measures about 28 feet and 3 feet. The setback area on the left side is 2 feet 4 inches, on the right side is 1 feet 1 inches.
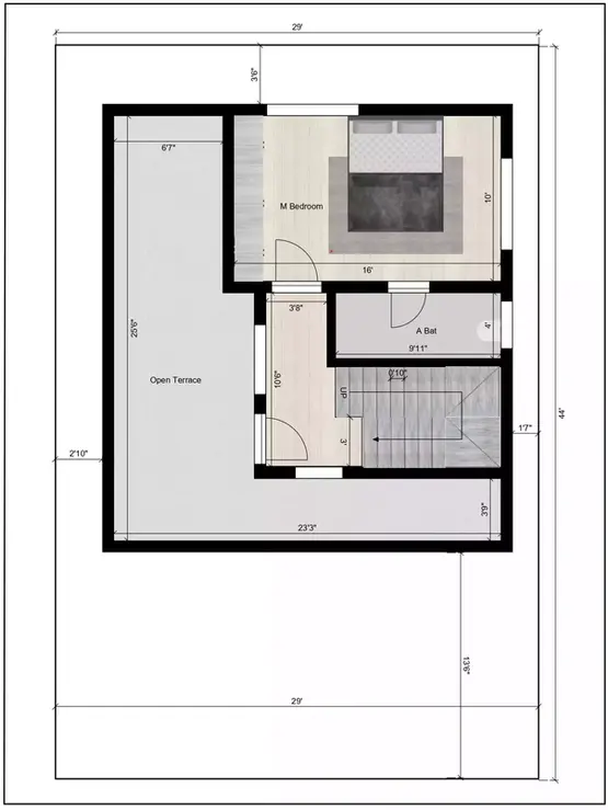
The terrace floor open terrace measures about 23 feet 3 inches and 25 feet 6 inches. The master bedroom in the southwest direction measures about 16 feet and 10 feet. The headroom measures about 3 feet 8 inches and 10 feet 6 inches. The attached bathroom to the master bedroom measures about 9 feet 11 inches and 4 feet.





