House Plans by Size Select
20 x 20 ft Plans

27 x 55
RH
North
27 x 55 ft House Plan 3 Bedroom Of The Residential Building
RH0019
Rating
27 x 55 ft (8.23 x 16.76 m) house plan 3 bedroom of the Residential building
This is a north-facing, 27.0 x 55.0 ft, 3BHK independent duplex house plan constructed within 3 floors. The ground floor has a parking area along with 2 bedrooms, living hall, kitchen and the utility. The first floor has an open terrace, family hall, and one bedroom. The terrace floor has an open terrace, laundry room, and headroom.
The ground floor common bathroom measures about 4.7 x 9.5 ft. The main door is in the north direction. The living hall measures about 16.6 x 11.9 ft. The kitchen along with the dining hall measures about 9.6 x 15.2 ft. The bedroom in the southwest direction measures about 11.3 x 11.4 ft with an attached utility measuring 12.0 x 5.6 ft. The bedroom in the northwest direction measures about 10.2 x 16.4 ft. The spacious parking area is located in the northeast direction measuring about 12.11 x 19.9 ft. The setback area on the right and left side is 1.6 ft. At the back side it is 1.1 ft.
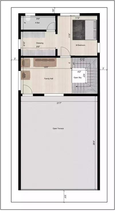
The first floor family hall measures about 14.6 x 10.2 ft. The open terrace in the east direction measures about 21.7 x 26.5 ft. The bedroom in the south-west direction measures about 11.4 x 11.4 ft with the attached bathroom measuring 9.9 x 4.0 ft.
The terrace floor laundry room in the north-west direction measures about 9.10 x 11.5 ft. The open terrace measures about 15.3 x 26.4 ft.








