Complete 2D House Plan Layout
2bhk Rental house plan north facing with Vastu along with parking
27 x 41 ft (8.23 x 12.50 m) house plan typical floor of the Residential building
This is a north-facing 2BHK rental house plan constructed on the principles of Vastu, providing with special features like puja room facility, utility facility. This is a three-floor building. The ground floor has a spacious parking area along with a 2BHK rental house.
The typical floor has a small balcony consisting of a 2BHK rental house. The terrace floor has an open terrace.
Ground Floor
The pooja room measures about 3 x 3.7 ft. The kitchen in the southeast direction measures about 10.8 ft. Utility in the southeast direction directly connected to the kitchen measures about 10.8 x 3.6 ft. The bedroom in the southwest direction measures about 10.6 x 10.7 ft with the attached bathroom measuring 6.10 x 4.7 ft. The living hall measures about 10.9 x 15.6 ft located in the northeast direction. The bedroom in the northwest direction measures about 10.6 x 10.6 ft. The main door is in the north direction. The parking measures about 14 x 6 ft.
Typical Floor
The typical floor balcony is very spacious measuring 13.2 x 6.2 ft. The pooja room measures about 3 x 3.7 ft. The kitchen in the southeast direction measures about 10.8 ft. Utility in the southeast direction directly connected to the kitchen measures about 10.8 x 3.6 ft. The bedroom in the southwest direction measures about 10.6 x 10.7 ft with the attached bathroom measuring 6.10 x 4.7 ft. The living hall measures about 10.9 x 15.6 ft located in the northeast direction. The bedroom in the northwest direction measures about 10.6 x 10.6 ft.
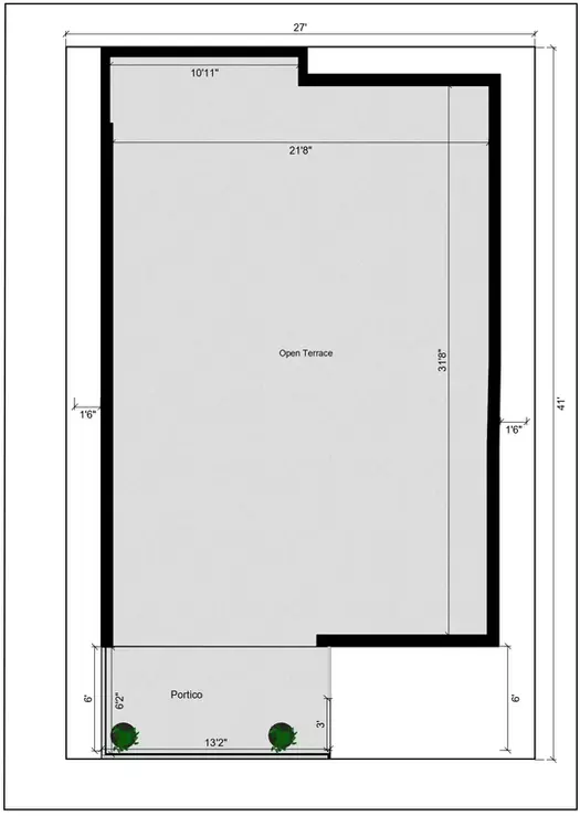
Terrace Floor
The terrace floor open terrace measures about 21.8 x 31.8 ft. Here the area is fully dedicated parking.






