House Plans by Size Select
20 x 20 ft Plans

20 x 60
RI
North
25 x 60 ft North Facing House Vastu Plan 3BHK Plan
RI0001
Rating
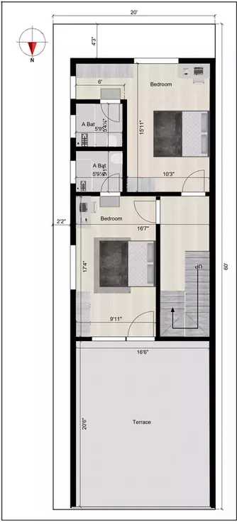
North facing house vastu plan 20 x 60 ft (6.10 x 18.29 m) 3BHK plan
A north-facing, 20 x 60 ft, Vastu-based, 3BHK independent duplex house plan constructed in two floors. The ground floor has parking area, one bedroom, kitchen, dining hall, puja room, and utility area. The terrace floor has two bedrooms with open terrace.
The ground floor parking area in the south-east direction measures about 19 x 20.4 ft. The main door is in the north direction. Puja room in the north-east direction measures about 4.1 x 6.5 ft. The living area measures about 16.6 x 15.5 ft. The kitchen in the south-east direction measures about 5.10 x 10.7 ft. The bedroom in the south-west direction measures about 15.11 ft, with the attached bathroom measuring about 7.4 x 4.10 ft. The toilet in the south-west direction measures about 4 x 3.9 ft. The setback area on the left side is 1.8 ft.
The terrace floor open terrace measures about 16.6 x 20.6 ft. There are two bedrooms. The first bedroom in the southwest direction measures about 10.3 x 15.11 ft with the attached bathroom measuring about 5.9 x 5.4 ft. Another bedroom measures about 9.11 x 17.4 ft with an attached bathroom measuring about 5.9 x 5.1 ft.







