House Plans by Size Select
20 x 20 ft Plans

25 x 60
RI
North
25 x 60 ft House Plan For Rent
RI0010
Rating
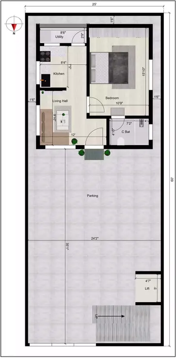
The 25 x 60 ft (7.62 m x 18.29 m) house plan for rent
A rental purpose north facing Vastu based 25 feet by 60 feet 1BHK and 2BHK rental house plan constructed within three floors.
The ground floor has a spacious parking area along with a 1BHK rental house. The lift facility is provided from the ground floor till the terrace floor. The typical floor has a spacious passage along with the 2BHK rental house.
The ground floor common bathroom in the northwest direction measures about 7 feet 2 inches and 4 feet 10 inches. The bedroom in the southwest direction measures about 10 feet 9 inches and 15 feet 10 inches. The living hall in the northeast direction measures about 12 feet and 9 feet 10 inches. The main door is in the north direction. The kitchen in the southeast direction measures about 8 feet 4 inches and 7 feet 5 inches. The utility area directly connected to the kitchen measures about 8 feet 6 inches and 2 feet 9 inches. The setback area on all three sides is 1 feet 6 inches.The ground floor parking area measures about 24 feet 2 inches and 35 feet 1 inches.
The typical floor passage measures about 17 feet 6 inches and 12 feet 4 inches. The main door is located in the north direction. The living hall measures about 10 feet 8 inches and 22 feet 5 inches. The bedroom in the southwest direction measures about 10 feet 6 inches and 15 feet 10 inches with the common bathroom measuring 7 feet 7 inches and 4 feet 10 inches. Pooja room measures about 3 feet 10 inches and 3 feet 10 inches. The dining hall measures about 8 feet 4 inches and 9 feet 10 inches. The kitchen in the southeast direction measures about 8 feet 6 inches and 7 feet 7 inches. The utility area measures about 8 feet 5 inches and 2 feet 9 inches. The bedroom in the northwest direction measures about 8 feet 6 inches and 16 feet 6 inches with the attached bathroom measuring about 8 feet 6 inches and 4 feet 11 inches.
The terrace floor has an open terrace and utility area. The terrace floor open terrace measures about 19 feet 3 inches and 56 feet 7 inches. The utility area in the southwest direction measures about 7 feet 6 inches and 5 feet 5 inches. The lift measures about 4 feet 7 inches and 5 feet.









