House Plans by Size Select
20 x 20 ft Plans

24 x 55
RH
East
24 x 55 ft Duplex House Plan East Facing
RH0011
Rating
The east facing 24 x 55 ft (7.32 x 16.76 m) duplex house plan
An east-facing, 24.0 x 55.0 ft, 4BHK independent duplex house plan provided with special features like parking area, family hall, puja room, family hall, headroom, open terrace, and many more. This house is constructed on the principles of Vastu. The ground floor has a parking area, one-bedroom utility area, living hall, kitchen, and the parking area. The Vastu has two bedrooms, a puja room, and a family hall. The second floor has a family hall, open terrace, and a one-bedroom. The terrace floor has an open terrace along with the headroom.
The ground floor living hall measures about 13.3 x 20.9 ft, located in the northeast direction. The kitchen in the southeast direction measures about 9.6 x 10.1 ft. The parking area measures about 23.0 x 19.5 ft. The bedroom in the southwest direction measures about 9.6 x 12.5 ft, with the attached bathroom measuring 9.6 x 4.7 ft. The utility area measures about 11.2 x 4.10 ft, located in the northwest direction. The common bathroom measures about 5.5 x 6.11 ft. The setback area on the right and left side is 1.0 ft.
The first floor balcony measures about 20.7 x 5.0 ft. Connected to a bedroom located in the south east direction measuring about 14.9 x 15.1 ft. The attached bathroom measures about 4.7 x 9.5 ft. The family hall measures about 13.3 x 8.11 ft. Pooja room measures about 4.0 x 3.6 ft. The bedroom in the south west direction measures about 9.6 x 12.5 ft. The attached balcony in the north west direction measures about 9.8 x 4.10 ft. The bathroom measures about 9.6 x 4.7 ft.
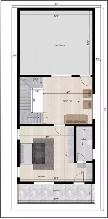
The open terrace on the second floor measures about 19.9 x 17.6 ft. Balcony measures about 20.7 x 5.0 ft. Connected to a bedroom located in the south east direction measuring about 14.9 x 15.1 ft. The attached bathroom measures about 4.7 x 9.5 ft. The family hall measures about 13.3 x 8.11 ft.
The terrace floor headroom measures about 4.6 x 12.11 ft. The open terrace measures about 19.9 x 52.3 ft.








