Complete 2D House Plan Layout
West facing rental 2bhk western house plan along with parking
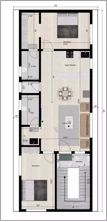
23 x 55 ft (7.01 x 16.76 m) house plan 2bhk west facing with 1bhk for rent
A west facing 23.0 x 55.0 ft a 1BHK and a 2BHK rental house plan constructed to generate higher rental income. This is a three-floor building. The ground floor has a parking area along with a 1BHK rental house. This typical floor has a 2BHK rental house and the terrace floor has an open terrace.
The ground floor living area along with the kitchen and dining hall measures about 13.4 x 27.4 ft. The main door is in the west direction. The common bathroom measures about 4.10 x 8.2 ft. The utility area measures about 4.10 x 3.2 ft. The bedroom in the south east direction measures about 13.4 x 10.0 ft with an attached bathroom measuring 4.10 x 7.10 ft. The setback area on the right and left side is 1.0 ft. The parking area measures about 11.3 x 15.2 ft.
A typical floor bedroom in the Northwest direction measures about 9.2 x 15.2 ft with the balcony measuring about 9.0 x 3.9 ft. Living area along with the kitchen and dining hall measures about 13.4 x 27.4 ft. The main door is in the west direction. The common bathroom measures about 4.10 x 8.2 ft. The utility area measures about 4.10 x 3.2 ft. The bedroom in the south east direction measures about 13.4 x 10.0 ft with an attached bathroom measuring 4.10 x 7.10 ft.
The terrace floor open terrace measures about 18.8 x 53.8 ft.





