Complete 2D House Plan Layout
1BHK rental 22 by 30 House plan with north facing, parking and 3BHK for duplex with balcony and open sky
This detailed 22’x30’ north-facing duplex house plan is thoughtfully designed across G+3 floors to balance functionality, privacy, and aesthetics. The layout incorporates parking, utility, living spaces, and leisure zones while ensuring ample ventilation and natural light.
On the ground floor, the buildup area spans 660 square feet. The parking area, measuring 20’10” x 15’5”, accommodates car standing and gardening activities, with stairs positioned in the northwest corner, ascending eastward. The north-facing main door leads into a living hall of 12’4” x 6’1”, connected to an open kitchen in the southeast corner measuring 10’2” x 4’7”. Additionally, a southwest bedroom of 8’1” x 7’ and a northwest common bathroom of 3’5” x 6’1” complete the layout, offering a practical arrangement for essential needs.
The first floor covers an area of 570 square feet and emphasizes family living. After ascending the stairs from the west, a balcony of 6’9” x 3’6” provides an outdoor retreat. The main door opens into a 12’5” x 12’5” living area in the north, with attached stairs in the west leading to higher floors. The southeast kitchen, measuring 14’2” x 10’6”, is spacious and functional, accompanied by a common bathroom of 4’ x 6’11” and a northeast pooja room of 1’9” x 3’4”. The thoughtful layout ensures comfort and convenience for daily living.
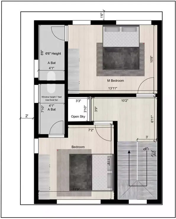
The second floor maintains the same dimensions of 570 square feet. After ascending the stairs from the north, a free space in the southwest measures 10’2” x 6’11”, ideal for walking or transitional use. The northeast bedroom spans 11’9” x 11’8” with an attached bathroom of 4’1” x 7’10”. The southwest master bedroom, measuring 13’11” x 10’8”, includes an attached bathroom of 4’1” x 8’8”. A unique open sky view in the east, measuring 3’3” x 3’10”, enhances the floor’s brightness and ambiance.
The third floor, also 570 square feet, is primarily for leisure and relaxation. A southwest free space measuring 10’2” x 6’11” provides accessibility. The master bedroom in the southwest measures 13’11” x 10’8” with an attached bathroom of 4’1” x 8’8”. An open terrace in the northeast measuring 11’9” x 11’8” offers ample space for leisure activities such as gardening and social gatherings. An open sky view in the east, measuring 3’3” x 3’10”, complements the terrace, providing fresh air and scenic views.
This plan balances essential utility spaces, private bedrooms, and outdoor leisure areas while maximizing comfort and natural light. If you’d like adjustments or further details






