Complete 2D House Plan Layout
Modern duplex house design 3 bedroom south facing with car parking
20 * 40 ft (6.10 × 12.19 m) south facing house plan duplex design
This is a south-facing, 20 feet by 40 feet, 3BHK duplex house plan consisting of study room, parking area, and many more. This is a four-floor building. The ground floor has a parking area, living hall, puja room, and kitchen area. The first floor has two bedrooms, balcony. The second floor has one bedroom, study room, along with the balcony. The terrace floor has an open terrace, along with the headroom and the laundry room.
The ground floor puja room in the northeast direction measures about 2.6 x 3.0 ft. The living hall measures about 8.2 x 17.0 ft. The kitchen and dining area measures about 6.4 x 10.0 ft. The main door is in the northeast direction. The parking area measures about 18.10 x 14.0 ft.
The first floor kids' bedroom measures about 10.0 x 13.2 ft. The balcony in the northeast direction measures about 4.2 x 16.2 ft. With an attached bathroom measuring 4.2 x 6.6 ft. The master bedroom measures about 14.0 x 14.0 ft. With an attached bathroom measuring about 4.2 x 6.6 ft.
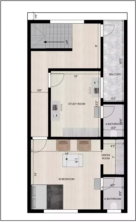
The second floor study room measures about 10.0 x 13.2 ft. The balcony in the northeast direction measures about 4.2 x 16.2 ft. With an attached bathroom measuring 4.2 x 6.6 ft. The master bedroom measures about 14.0 x 14.0 ft. With an attached bathroom measuring about 4.2 x 6.6 ft.
The third floor terrace area measures about 18.8 x 13.8 ft. The laundry room measures about 6.0 x 6.0 ft. Headroom in the northeast direction measures about 10.4 x 5.0 ft.







