Complete 2D House Plan Layout
1BHK rental 20 by 30 House plan with south facing, parking and 2BHK for duplex with balcony, pooja room, family hall, lougue, laundry and store
This carefully thought out design incorporates a spacious 2 BHK duplex alongside a functional 1 BHK unit into a cohesive and balanced 20 x 30 house plan 2 BHK duplex.
Ground Floor
Centered on maximizing outdoor space and vehicle flow, this south-facing 20 x 30 duplex begins with a compact parking area measuring 14’ x 9’10”. Both the ground and upper levels are serviced by a staircase located at the southwest corner. Further circulation is ensured through a main entrance located at the northeast of the house, which opens to wait in the east direction. The living hall measuring 15’ x 8’ serves as a centralized gathering space to the northwest and, as the name indicates, is open to the sun and natural light. As such, the living hall is complemented towards the southeast with open kitchen space measuring 6’4” x 7’. Finally, accommodation is located at the southwest corner in the form of a bedroom measuring 8’2” x 9’ with an attached 3’6” x 8’2” bathroom which is both private and comfortable.
First Floor
An expansive balcony 10’4” x 27’8” is located just in front of the stairs on the first floor and provides ample space for outdoor activities. The main door lies to the east in the northeastern corner and opens to the east. The main space is the living area, 3’ x 3’ pooja room is in northeast, best suited for spiritual activities. The northwest part has a living hall 10’ x 11’6” for relaxation or entertainment. Adjacently in the west direction, there is a staircase to the upper levels. A southeast portion has an open kitchen and dining area 15’ x 9’ which is very effortless and functional.
Second Floor
While going up, the second floor opens to a family hall to the east measuring 11’ x 10’4”. This space is usually utilized for casual family activities. A master bedroom is positioned at the northwest corner and it spans 14’2” x 10” with an adjacent bathroom of 4’x10’ which allows easy movement. There is a common bathroom beside the other door of the staircase for common use it is 5’6”x7’10”. In front of the stairs is a balcony that is 10’4”x5’6” giving this floor some outdoor space.
Third Floor
The third floor starts with a lounge area situated in front of the staircase that measures 10’4”x11”. The south west part is reserved for a combined laundry and storage room measuring 7’10”x5’6” making it useful. In the north part there is a kids’ room that measures 14’2”x10’ with a bathroom attached measuring 4’x10’. Infront of the stairs is a balcony measuring 10’4”x5’6” with usable outdoor space for that floor.
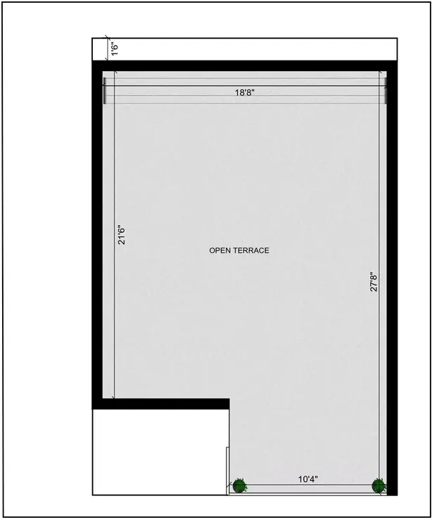
Terrace Floor
The lovely open terrace sits at the top and measures 18’8” x 27’8”. Unlike most balconies, this terrace allows for quite a lot of activity, leisure, and socializing.
The entire space provided by the G + the 4 th duplex plan is well designed and organized. Consider all these features. Modernized space allocation on all levels.







