Complete 2D House Plan Layout
1BHK rental 20 by 30 House plan with west facing, parking and 3BHK for duplex with passage, pooja room, balcony, lougue, open sky and study room
Like every duplex, this one has two separate living units which would accommodate 2 families or more. The design on the house is so aesthetic that you wouldn't want to miss visiting it.
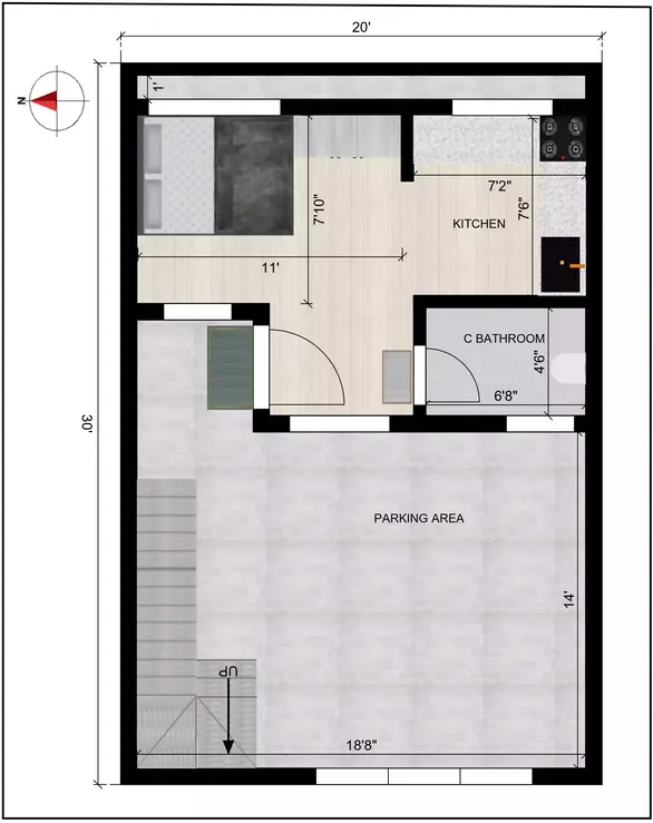
Ground Floor
The area reserved for the car is 18'8" x 14' on the ground floor and that can serve as parking as well. The staircase is located in the north western side and has access to all floors. The main entrance door is located on the northern side as we start facing North and it's right next the door's heading. It opens onto an inner hallway and to the northeastern side, there is a quite roomy space measuring 11' x 7'10”. This space can be used as a study or bedroom area or simply as a guest room. There are two bathrooms and an open kitchen which serves as a common area which measures an impressive 7'6” x 7'2".
First Floor:
The first floor begins with a passage entrance measuring 4'8'' x 5'1'' right in front of the stairs. The main entrance on this level also faces north, which corresponds to the ground floor. A shared lavatory offset at 3’6” x 6’8” is located where it is convenient. On the southwest side is a living hall measuring 10’ x 10’, which functions as an informal family room. Towards the southeast corner, there is an open kitchen cum dining area measuring 15’2” x 10” which is rational and contemporary. In the northeast corner is located a pooja room measuring 3’ x 3’ which adds calm spirit. The duplex stairs also continue up from the south, allowing for ease of movement in all parts of the house.
Second Floor:
A notable aspect of the second floor is that there is an open sky view in the middle of the stairs, allowing for enhanced airflow as well as light. At the foot of the stairs is a lounge with dimensions 6’2” x 11’11”. The eastern side has a bedroom 14’ x 10’ with an attached bath (4’2” x 10’). Also on the western side is located another bedroom with the same dimensions (14’ x 10’) with an attached bathroom (4’2” x 10’), thereby providing ample space and privacy for occupants.
Floor Three:
The third floor has a more practical approach while still maintaining a lavish touch. Upon coming across the stairs, a lounge area measuring 6'2" x 11'10" welcomes you. In the south west corner, there is a 10' x 14' sized bedroom along with an attached restroom which is 4'2" x 10' in size. In the southeast, there is a study room of 12' x 10' dimensions with an attached bathroom measuring 4'8" x 6'2". Northwest corner there is also a balacony measuring 6'2" x 5'4" which can be used as quiet getaway. The other bedroom Facing southwest is another bedroom which measures 14' x 10' and also has an adjoining bathroom 4'2" x 10'.
Tarrace Floor:
The terrace floor has an aim of maximizing both open space and utility. Access to the terrace facilities is from the rooftop and is seamlessly accessible through a head room measuring 6'2" x 11'11". The rooftop is separated into two large decks, one facing east which is 18'8" x 10' and other at western end measuring 18'8" x 10'. These decks are ideal for relaxation, social activities or simply enjoying the sky.
Primary Takeaways:
This duplex plan maximizes a 20' x 30' plot with its G+4 design, captures west views, and includes private bedrooms, usable kitchens, large lounges, and open terraces. Architectural design and ventilation are taken to another level with the modern and stylish design that includes a sky view, improving airflow and aesthetics even further.







