Complete 2D House Plan Layout
1BHK rental 20 by 30 House plan with west facing, parking and 4BHK for duplex with passage, pooja room and lougue
This thoughtfully crafted 20 by 30 Best House Plan Duplex Home utilizes its G+4 layout to seamlessly integrate private and shared spaces, usability, and comfort.
Ground Floor:
The ground floor accommodates vehicle needs with an efficiently arranged parking area of 18’8” x 14’. The staircase located in the northwest corner serves as a means of vertical transport to upper levels. The entrance is positioned in the northwest and is facing north providing an inviting welcome. Northeast corner features a multi-purpose room with dimensions 11’ x 7’10” that can be utilized for guests or any other purpose which is adjacent to the entrance. The southeast quadrant contains a slightly larger than functional open kitchen measuring 7’2” x 7’6”. The floor is rounded off with a common bathroom strategically placed for accessibility whenever needed, measuring 6’8” x 4’6”.
First Floor:
Sustaining an ergonomic focus across the duplex, a lobby sized 4’8” x 5’1” integrates the staircase with the sociable area on the first floor. Primary entry point remains on the North side in-line with the lower level approach. Northeast corner boasts an exquisite pooja room which is 3’x3’ sqft square that is both alluring and peaceful for meditative exercises. In Southeast, which is more bulging, an open kitchen with a dining area which measures 15’2”x 10’ is quite suitable for family sitting at the same time. The duplex staircase continues its upward journey along the south. Southwest contains a cozy living hall measuring 10’x10’ which is best suited for relaxation. A second common WC measuring 3’6”x6’8” brings additional spatial utility to this floor.
Second Floor:
At the second floor, a lounge area measuring 11’11” x 6’2” is located right on the top of the stairs. Southwest corner takes up the master bedroom furnished with an attached bathroom (10’x4’2”) Mezzanine floor expands children’s bedroom in the region with 14’2”x10’ which includes bathroom (4’x10’) for additional features designed specially for younger inhabitants.
THIRD FLOOR:
As with Second Floor, the same layout principles apply. A lounge measuring 11'10'' x 6'2'' connects with other private areas. Guest room on the east features a bed (10' x 14'2') with an attached bathroom (4' x 10') for convenience. On the west side is another bedroom (14' x 10') with an attached bathroom (10' x 4'2').
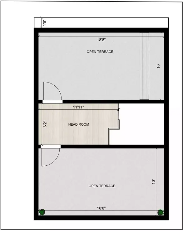
TERRACE FLOOR:
On the uppermost level, the terrace floor combines utility and leisure. Headroom measuring (6'2'' x 11'11'') provides access to the roof. Two open terraces, one in the east measuring 18'8'' x 10' and the other in the west measuring 18'8'' x 10'' are fantastic for hosting or relaxing outdoors.
SUMMARY:
The design of this G+4 duplex home optimally utilizes every inch of the 20' x 30', west-facing plot In addition, the multifunctional floor plans, generous terraces, and alcoves designed meticulously ensure that the requirements of a modern family are met in perfect harmony with beauty and functionality.







