Complete 2D House Plan Layout
North face house plan 1bhk Rental plan with 1hk Ground floor with Parking
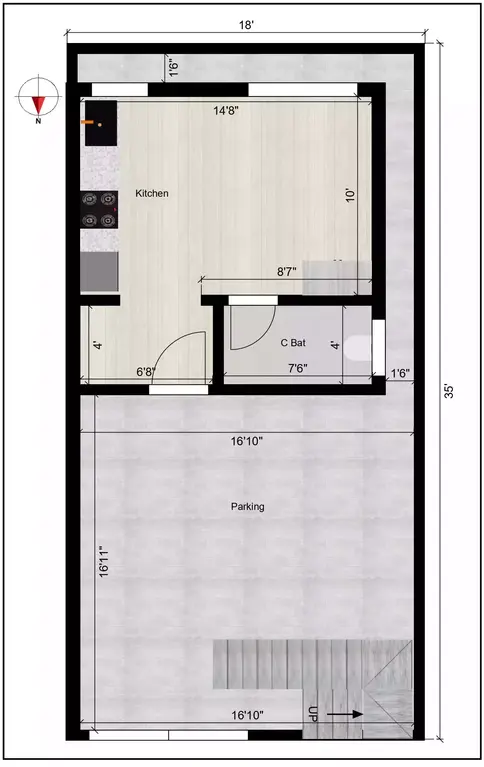
This 18x35 North facing typical floor plan which transformed beautifully and narrative across the G+3 floors. This structured layout of the residential building making use of 630 sqft per floor to ensure the space, ventilation and brightness throughout the house.
Ground floor
Ground floor covers parking area 16’11” x 16’10” that offer convenient placement for vehicle, which northwest facing stairs that leading up to east side. Main door positioned facing northeast where open kitchen measures 10’x 14’8” that is placed sourtheast corner along with room covered which is both welcoming and function efficiently.
The common bathroom measuring 7’6” x 4’ is in northwest direction that is very ease access for all.
First floor
Living room facing northwest direction that measuring 14’8”x 11’10” offers family members which give relaxing feel. An open kitchen is compact and efficient that measuring 5’2” x 10’6” is located in the southeast corner. Bedroom size of 10’ x 9’ which is cleverly designed towards southwest-facing direction.
Balcony size 4’7”x 11’5” adjacent to the stairs offers for gardening plans and allws fresh light and air circulation. The Common bathroom size of 4’ x7’6” located in the northwest which is convenient accessible to that bedroom.
Second floor
The Second floor mirrors the layout of the first floor and provides the identical living spaces.
Additional floors can be designed same as the First floor which resembles similar layout and structure.
Terrace floor
An open terrace have a spacious 27’3”x 14’8” that utilize for recreational activities, family functions or for gardening. Additionally, balcony space measures 4’7”x 11’5”, providing more options for outdoor activities.






