House Plans by Size Select
20 x 20 ft Plans

15 x 35
RA
East
15 x 35 ft House Plan East Facing Plan
RA0012
Rating
This 15 x 35 duplex house design face east direction. its carefully planned 4BHK over a three floor (G+2) layout. This home captures the modern living features advanced architecture that enlight natural lighting, airflow and useful spaces.
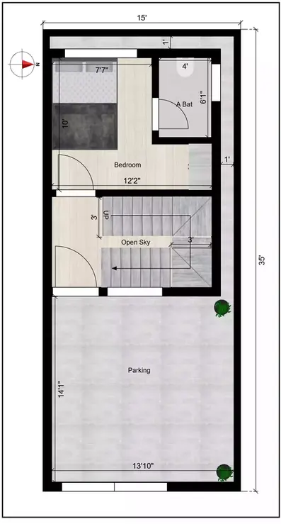
Ground floor
Beside its beautiful layout, its accommodates parking area size of 14'1" x 13'10" which used for bike standing and car parking. the main door placed south east direction faces east direction. stairs in north direction which moves up to south direction, a open sky view at middle of stairs, bedroom size of 7'7" x 12'2" in southwest direction which can be used as guest room with attached bathroom size of 4' x 6'1" in northwest direction.
First floor
The first floor captures all the look and style of the entire house, welcoming the family members in the living area which measures as 12'2" x 8'3" in north side, beside that duplex stairs continues to the next floor where open sky view at middle of the stairs.
Master bedroom 12'2" x 7'7" in southwest direction with attached bathroom 4' x 6'1" in northwest direction that touch a feel of privacy and luxury.
An open moden kitchen in southeast direction which measures 6' x 8'7" beside pooja room size of 3' x 3'1" in northeast direction that gives calm towards spirtual practices.
Second floor
After passing through stairs we can see second floor here two elegant bedrooms, one bedroom size of 7'7" x 12'2" in southwest with attached bathroom size of 4' x 6'1" in northwest direction and another bedroom size of 12'2"x 14' in southeast direction with atatched bathroom 4' x 6'5" which grants open space luxurious.
Terrace floor
Move to terrace floor we see spacious open terrace 10' x 12'2" in west direction and 14' x 12'2" in east direction that cane be udes for any multi purposes.











