House Plans by Size Select
20 x 20 ft Plans

15 x 35
RA
East
15 x 35 ft Duplex House Plans East Facing Of The Residential Building
RA0013
Rating
This duplex east facing 15 x 35 plot design has designed 3bhk duplex plan on G+2 floor which provides its residents with comfort, privacy and efficient spaces utility all in place.
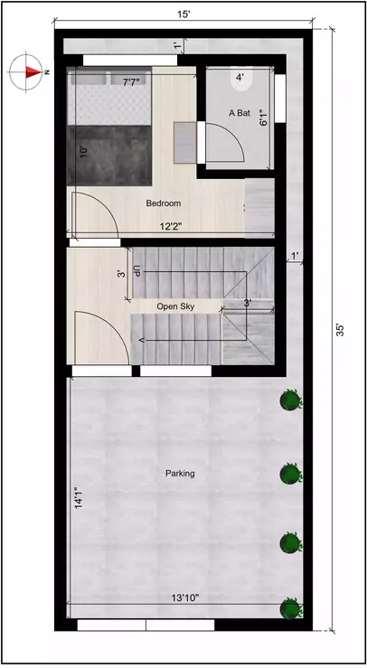
Ground floor
Its built up area around 262.03 sq ft. An inside parking area covers 13'10"x 14'1" which can be fit for car parking. Then main door placed face east direction, stairs in north direction which moves up to south direction, open sky view at middle of stairs. A bedroom that we can use for guest in southwest direction with attached bathroom 4' x 6'1" in northwest direction.
First floor
Moving in to first floor , we see open sky view at middle of the stairs, living hall size of 8'3" x 12'2" in north direction which serves as a family gathering space that is warm and welcoming. Southeast open kitchen size of 6' x 8'7" is provided, Beside pooja room size of 3' x 3'1" in northeast direction is provided gioves peace spirtually.
The Study room measures 7'7"x 10' in southwest direction that has been designed for perfectly utilize for learning or more concentration, then beside one common bathroom size of 4'x 6'1" in northwest direction. A utility area around 1'6" length covered inside the building.
Second floor
Next through stairs see the second floor we see two bedrooms, one bedroom size 12'2" x 7'7" in southwest direction with atatched bathroom 4' x 6'1" in northwest direction give most spacious providing luxururious treat. The other compace bedroom size of 14' x 12'2" in southeast direction with attached bathroom 4' x 6'5" is provided.
Terrace floor
After moving through stairs we see open terrace size of 10' x 12'2" in west direction and 12'2" x 14' in east direction can used for gardening or any other purposes.











