House Plans by Size Select
20 x 20 ft Plans

15 x 30
RA
West
15 x 30 ft House Plan West Facing Plan Of The Residential Building
RA0011
Rating
The 2BHK duplex West facing house plan has been designed with G+3 structure. It covers area of 1695 sq ft which perfectly combines modern functionality. Next we see detail and dimension of the duplex building plan.
Ground Floor
Here Ground floor first welcomes parking area covers 9'8" x 13'10" that occupies enough space for car or bike stand. The main door placed northwest direction, face West side. The living hall measures 12'2" x 18'8" in south direction that give a completely good feel for spending time with family members and friends.
Duplex stairs is located in the southeast direction that moves from south to east that making easy access to next floor.
First floor
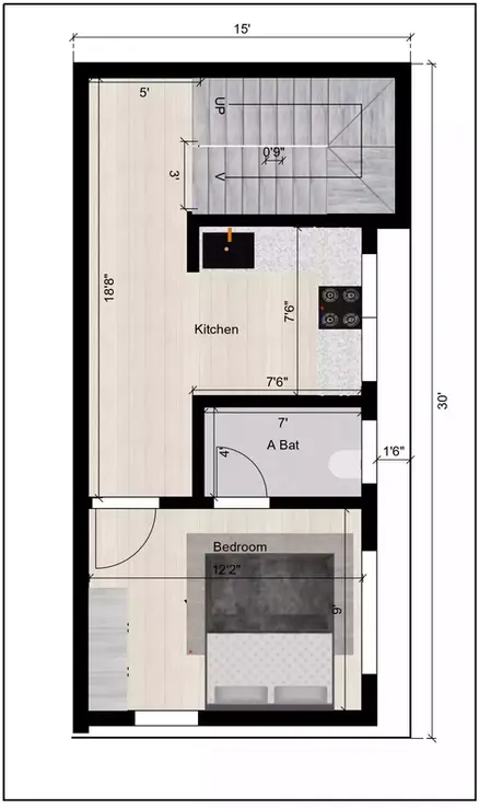
Next move to first floor, we see open kitchen that can be designed as modern style located in southeast direction which measures 7'6" x 7'6". Southwest Master bedroom size of 12'2" x 9' is provided along with attached bathroom size of 4' x 7' that make more comfort and privacy.
Large window that provide ventilation which brightens up the floor and feel fresh air and breth.
Second floor
It constructed multilple funtion on the basis of practically, this floor features optimize space. Laudry or store size of 7'3"x 7'6" beside stairs is provided. Bedroom size of 12'2"x 9' in southwest direction with attached bathroom size of 4' x 7' is provided.
The entire floor is completely feel comfort and utility that ensure more paractical.
Terrace floor
We see spacious open terrace in this floor that can ve uded or any other puropose like gardening, gathering or do any family function.










