Complete 2D House Plan Layout
Duplex house plan west facing 3 bedroom with car parking
This 15 x 30 house plan has bed designed in 3D dimension face West direction. This is duplex plan With G+2 floor.
Ground floor has parking space for bike or car and a stairs well that goes to south from the middle of the building. First floor has one bedroom for added accommodation. Utility area 1’6” in length located south side after stairs. The living room is to the west, there is common bathroom, kitchen and a pooja room on the other floors. There area two bedrooms and other come bathroom on the upper floor. This floor is also provided with proper light and air.
Ground floor
Ground floor build up area around 246.12 sq feet. Parking area covers 13’10”x 11’10” which is entered in to west. North of the parking is the stair case, bedroom size of 12’2” x 7’3” in East direction which can be used for guest room.
Common bathroom size of 4’x3’ is more convenient to use for all other.
First floor
First floor covers 405 sq feet, after passing through stairs we see open kitchen size of 8’8” x 4’2 ” in southeast direction that offers enough space while cooking as well as to serve. Pooja room size of 3’ x 3’2” in northeast direction that be used for spiritual activities.
Living room spans 12’2” x 10’ in west direction that occupies more spacious that should be very comfortable to chatting with family and friends. Common bathroom size of 4’x 7’11” in south direction that be very easy access to other family members.
Second floor
After passing through stairs we see two beautiful bedroom, One is southeast side which measures 12’2”x 7’3” that be perfect for guest or kids. Here also common bathroom size of 4’ x 8’ in south direction is provided.
Master bedroom size of 12’2”x 10’ in southwest direction is provided. This First floor always makes our home more elegant and modern style.
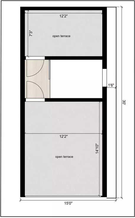
Terrace floor
We see full of spacious open terrace size 12’2” x 7’3” in east and 12’2”x 14’10” in west. Here utilize other multi-activities like gardening, laundry, gathering with friends in free time, or do any other family function.







