Complete 2D House Plan Layout
1bhk Rental house plan east facing with spacious Car parking along with store room
East facing 15 x 30 home design has been structured with G+2 floors. This plan can be designed for Rental plan. Next we will see the detailed dimensions as discussed below.
Ground floor
In Ground floor which parking area covers 13’10”x 28’10” that offering spacious space for both bike and car to park securely. A store room size of 7’10”x 11’ in southwest direction is provided. This place can be perfect for retail shop and can also be used as a car workshop or any other commercial activities.
Stairs is located in northwest direction that moves up to East direction. This can be very flexible to access to next floors.
First floor
Balcony size of 3’ x 5’6” in front of stairs, then main door placed at northwest direction that face west direction. Bedroom size of 7’10”x 11’ in southwest direction is provided which offer some spacious more comfort and privacy.
The living room spans 12’4”x 9’ in south direction, which invites warm, welcoming and memorable movements with family members. There is a common bathroom size of 4’ x 7’11” in northeast direction that can be ease for all.
An open kitchen size of 7’11” x 7’10” in the southeast direction is provided, its designed specially and also compact and with windows that free for ventilation.
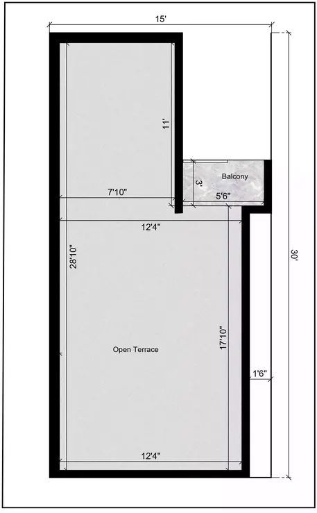
Terrace floor
We see a spacious open terrace size of 12’4” x 28’10” that can be utilized for laundry, gardening or other any activities.
This house has been designed for Rental plans, if need on other floor can design on the same as first floor with a similar layout and structure as you wish!







